Exclusive



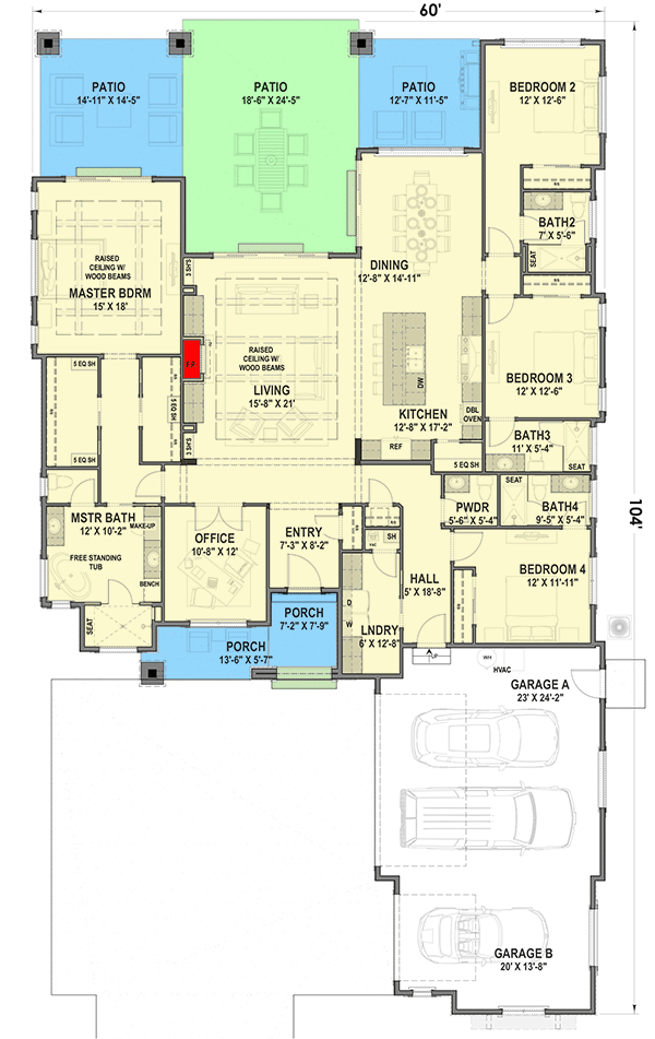
Total Heated Area
2,913 sq. ft.
1st Floor
2,913 sq. ft.
Optional Lower Level
2,527 sq. ft.
Porch, Combined
133 sq. ft.
Covered Patio
804 sq. ft.
Bedrooms
4, 5, 6, 7, or 8
Full bathrooms
4, 5, 6, or 7
Half bathrooms
1
Standard Foundations
Crawl
Exterior Walls
2x6
Width
60' 0"
Depth
104' 0"
Max Ridge Height
26' 4"
Type
Attached
Area
860 sq. ft.
Count
3 Cars
Entry Location
Courtyard
First Floor
10'
Primary Pitch
6 on 12
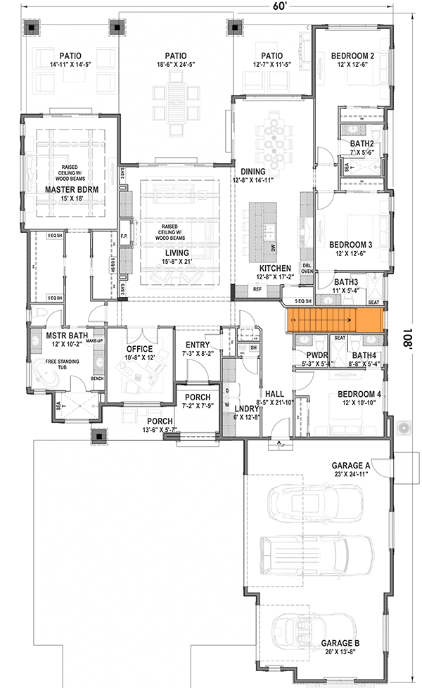
Total Heated Area
2,913 sq. ft.
1st Floor
2,913 sq. ft.
Optional Lower Level
2,527 sq. ft.
Porch, Combined
133 sq. ft.
Covered Patio
804 sq. ft.
Bedrooms
4, 5, 6, 7, or 8
Full bathrooms
4, 5, 6, or 7
Half bathrooms
1
Standard Foundations
Crawl
Exterior Walls
2x6
Width
60' 0"
Depth
104' 0"
Max Ridge Height
26' 4"
Type
Attached
Area
860 sq. ft.
Count
3 Cars
Entry Location
Courtyard
First Floor
10'
Primary Pitch
6 on 12