Exclusive

Total Heated Area
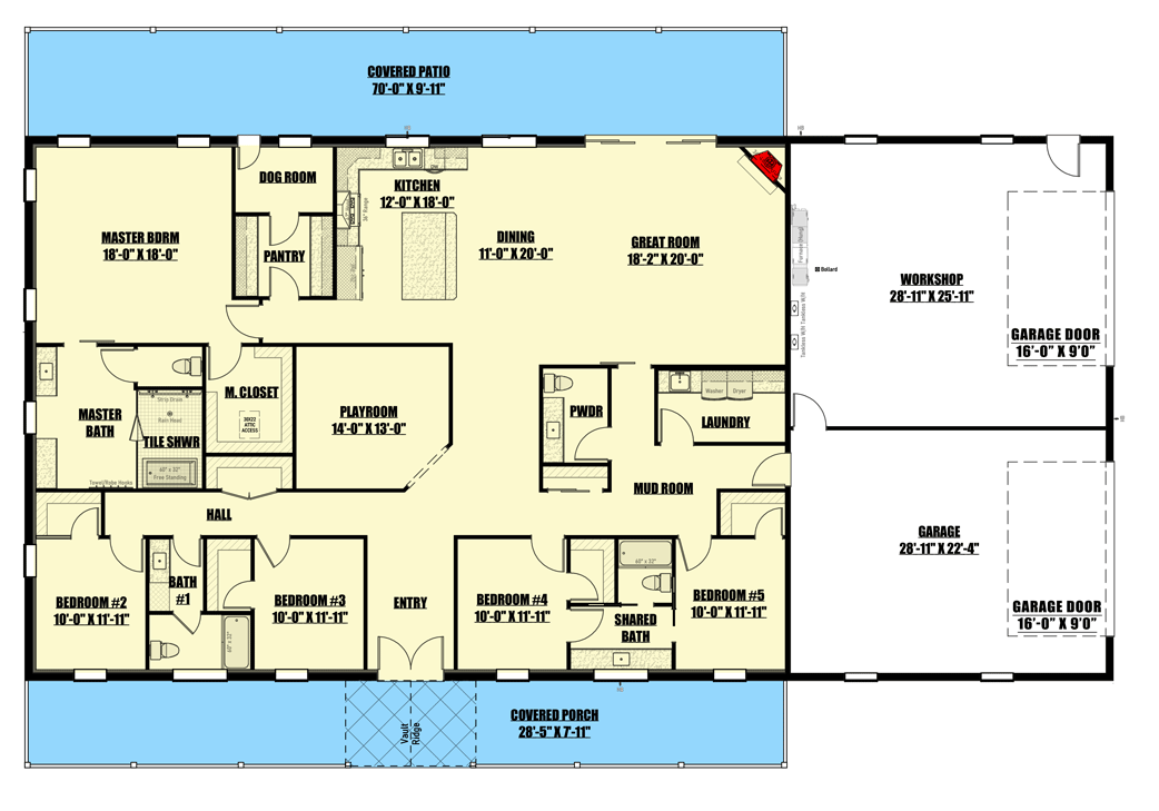
3,517 sq. ft.
1st Floor
3,517 sq. ft.
Porch, Combined
1,260 sq. ft.
Bedrooms
5
Full bathrooms
3
Half bathrooms
1
Standard Foundations
Monolithic Slab, Stem Wall
Exterior Walls
2x6
Width
100' 0"
Depth
76' 0"
Max Ridge Height
19' 3"
Type
Attached
Area
1483 sq. ft.
Count
4 Cars
Entry Location
Side
Lower Level
10'
Primary Pitch
4 on 12
Secondary Pitch
6 on 12
Framing Type
Stick And Truss
Total Heated Area
3,517 sq. ft.
1st Floor
3,517 sq. ft.
Porch, Combined
1,260 sq. ft.
Bedrooms
5
Full bathrooms
3
Half bathrooms
1
Standard Foundations
Monolithic Slab, Stem Wall
Exterior Walls
2x6
Width
100' 0"
Depth
76' 0"
Max Ridge Height
19' 3"
Type
Attached
Area
1483 sq. ft.
Count
4 Cars
Entry Location
Side
Lower Level
10'
Primary Pitch
4 on 12
Secondary Pitch
6 on 12
Framing Type
Stick And Truss