Exclusive






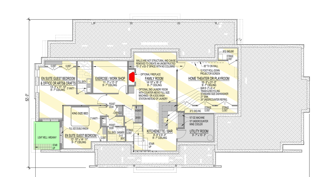
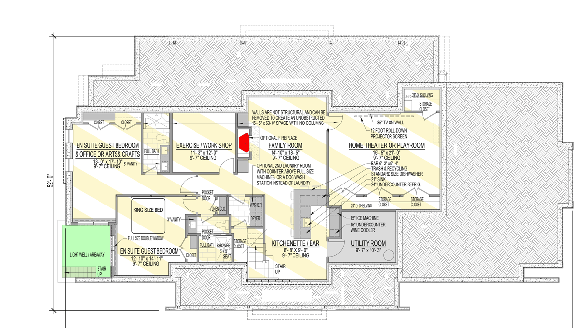
Total Heated Area
3,187 sq. ft.
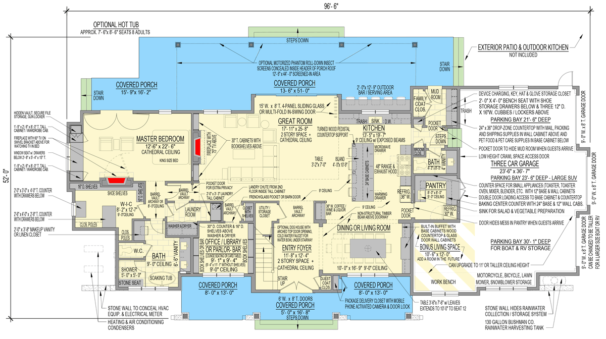
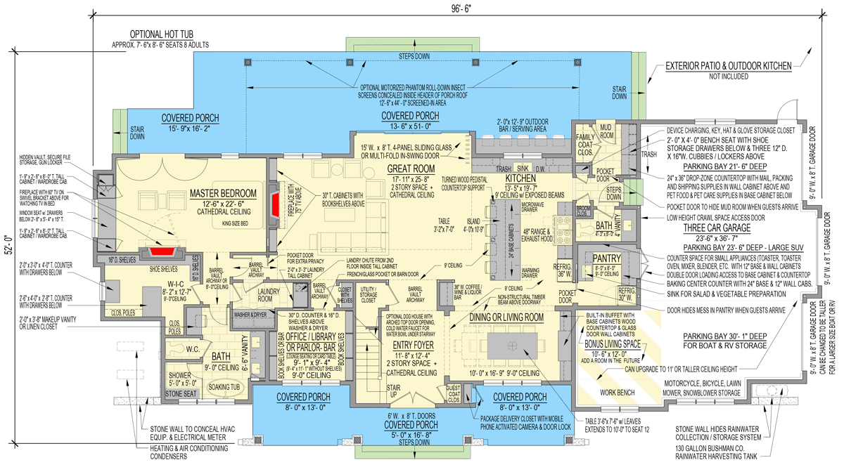
1st Floor
2,172 sq. ft.
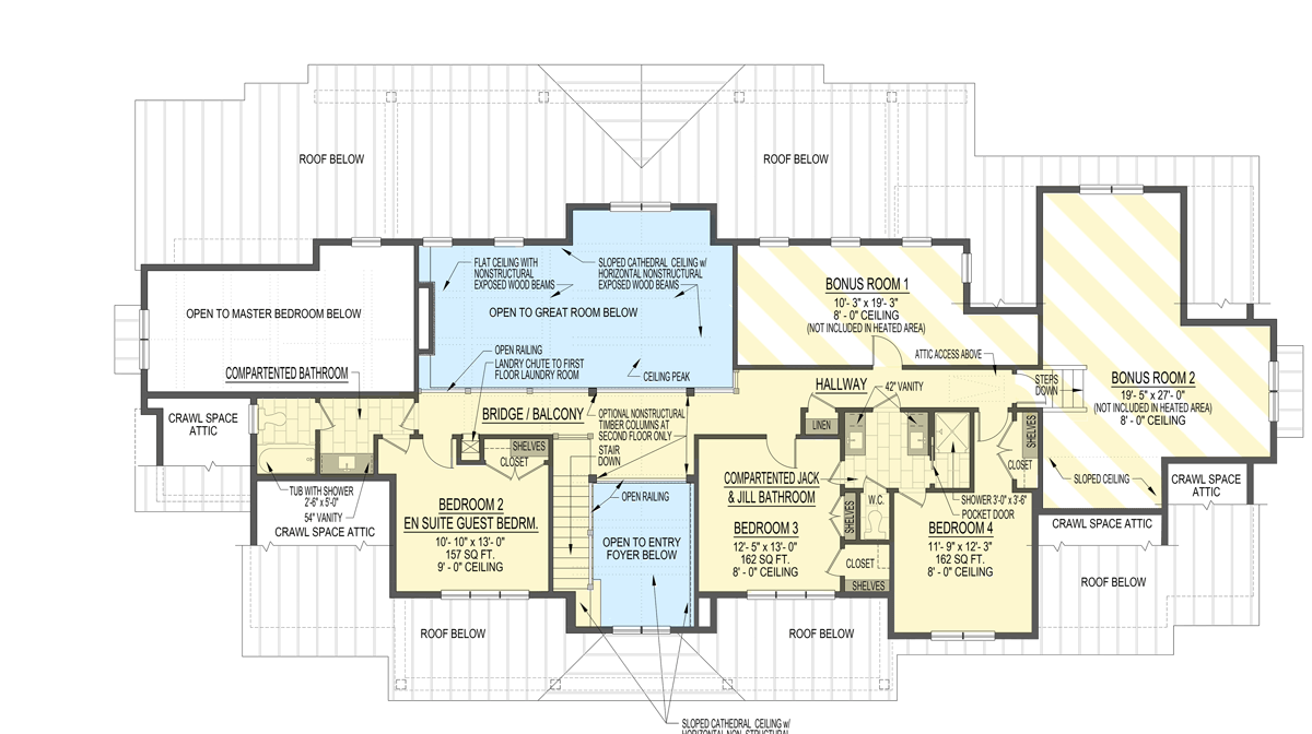
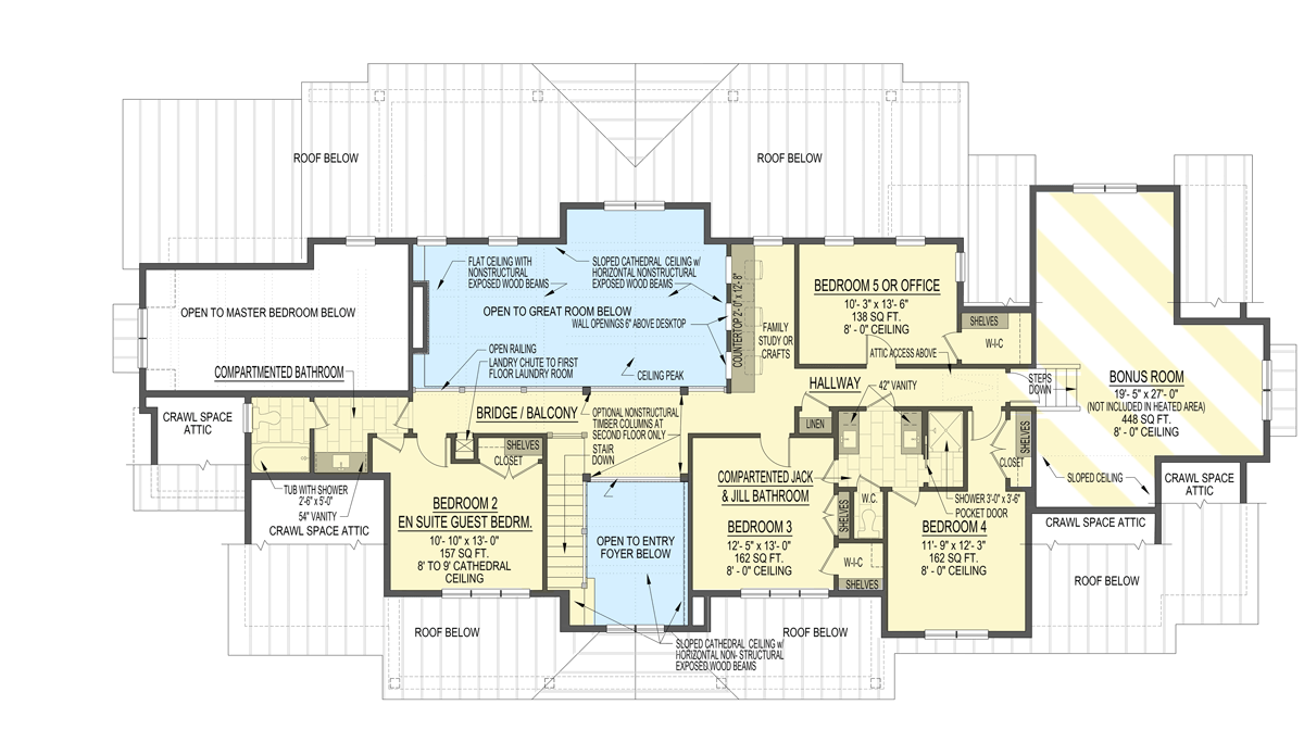
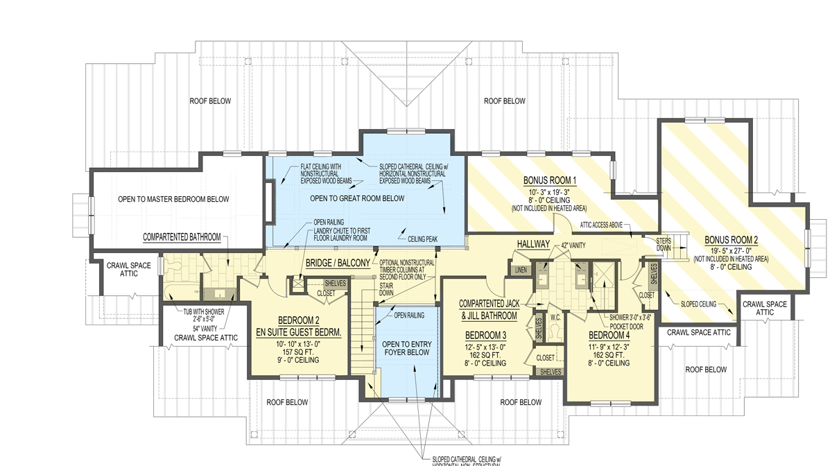
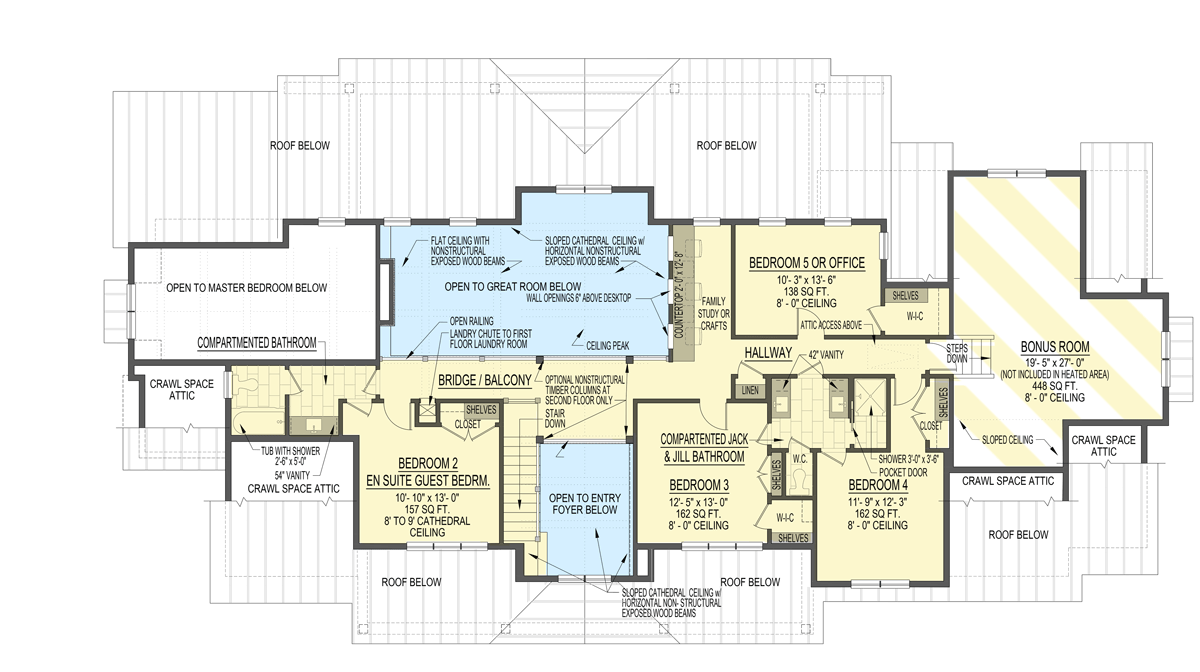
2nd Floor
1,015 sq. ft.
Bonus
719 sq. ft.
Porch, Combined
1,054 sq. ft.
Bedrooms
4 or 5
Full bathrooms
3
Half bathrooms
1
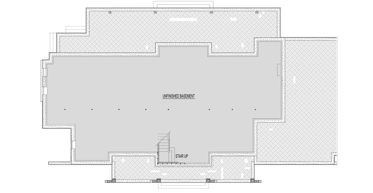
Standard Foundations
Crawl
Exterior Walls
2x6
Width
96' 6"
Depth
52' 0"
Max Ridge Height
31' 3"
Type
Attached
Area
975 sq. ft.
Count
3 Cars
Entry Location
Side
First Floor
9'
Second Floor
8'
Primary Pitch
6 on 12
Secondary Pitch
6 on 12
Framing Type
Truss
Total Heated Area
3,187 sq. ft.
1st Floor
2,172 sq. ft.
2nd Floor
1,015 sq. ft.
Bonus
719 sq. ft.
Porch, Combined
1,054 sq. ft.
Bedrooms
4 or 5
Full bathrooms
3
Half bathrooms
1
Standard Foundations
Crawl
Exterior Walls
2x6
Width
96' 6"
Depth
52' 0"
Max Ridge Height
31' 3"
Type
Attached
Area
975 sq. ft.
Count
3 Cars
Entry Location
Side
First Floor
9'
Second Floor
8'
Primary Pitch
6 on 12
Secondary Pitch
6 on 12
Framing Type
Truss