LogoLogo TaglineLogo Tagline
Loading...
Plan 15683GE

Eye-catching Craftsman with Optional Lower Level

Heated S.F.
2,589
Beds
4 - 5
Baths
3 - 4
Stories
2
Cars
2

Floor Plan

Plan 15683GE

Main Level
Main Level
2nd Floor
2nd Floor
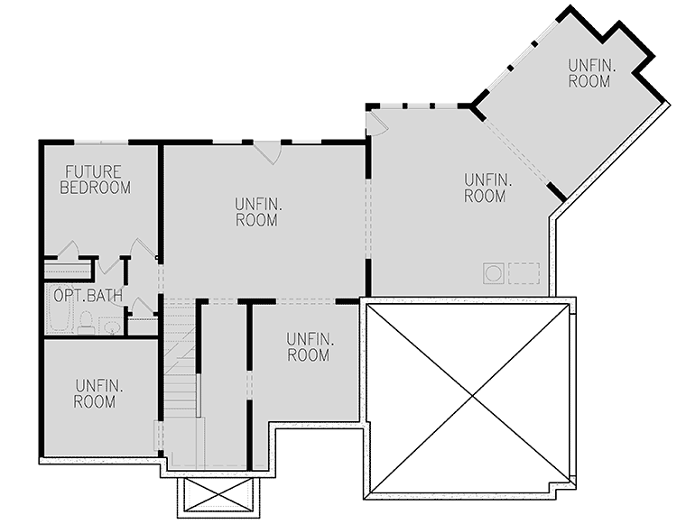
Optional Lower Level
Optional Lower Level

Plan 15683GE

M-F 9am-5pm EST |

1-203-761-8500

Main Level

Plan 15683GE: Eye-catching Craftsman with Optional Lower Level  - Floor Plan - Main Level - Country, Craftsman, Farmhouse, Southern

2nd Floor

Plan 15683GE: Eye-catching Craftsman with Optional Lower Level  - Floor Plan - 2nd Floor - Country, Craftsman, Farmhouse, Southern

Optional Lower Level

Plan 15683GE: Eye-catching Craftsman with Optional Lower Level  - Floor Plan - Optional Lower Level - Country, Craftsman, Farmhouse, Southern

Plan Details

  • This house plan is a warm blend of shake and stacked stone. The rocking chair front porch accented with twin columns give this Craftsman facade distinctive curb appeal. The home offers comfortable space with multiple living areas. An open floor plan gives a much larger feeling than the square footage suggests.
  • In traditional style, the two story foyer is flanked by a formal living room and dining room.
  • The island kitchen opens to both the breakfast and angled keeping room. A beautiful stacked stone fireplace flanked by windows adds a warm centerpiece for family and friends.
  • Completing the first floor is a bedroom and full bath and the living room which can double as a study.
  • On the second floor, the master bedroom, boasting a luxury bath and spacious walk in closet, is conveniently separated from two additional bedrooms by the hallway. The two bedrooms share a bathroom having a dual sink vanity and private tub and toilet room.

What's Included

  • Exterior elevations: Included are front, rear, left and right side views of the exterior of the house. Exterior materials, construction details and measurements are also noted.
  • Foundation Plan: Includes layout of foundation support walls, plus excavated and unexcavated areas, if applicable.
  • Detailed Floor Plans: These plans show the layout of each floor of the house, including room dimensions, window and doors sizes and keys for cross section details provided later in the plans. Engineered floor joist, ceiling joist and roof plans are not included in some plans. Local engineers or manufacturing engineers are widely available to supply the services that apply to local geographic conditions.
  • Interior Details: These drawings show the specific details and design of special interior features.
  • Roof Plan: Includes the overall layout for roof construction. If trusses are used, we recommend using a local truss manufacturer to ensure compliance with local codes and regulations.
  • Cross Section Detail: Important changes in floor, ceiling and roof heights or the relationship of one level to another are called out. Exterior details such as railing and banding may also be shown.
  • Electrical: Electrical floor plan schematics for 1st and 2nd floors.
  • Plans include wall and cornice sections, general foundation sections and details. 

What's Not Included

  • Architectural or Engineering Stamp - handled locally if required
  • Framing plans
  • Site Plan - handled locally when required
  • Mechanical Drawings (location of heating and air equipment and duct work) - your subcontractors handle this
  • Plumbing Drawings (drawings showing the actual plumbing pipe sizes and locations) - your subcontractors handle this
  • Energy calculations - handled locally when required

Starting at

Loading...
Price Match Guarantee
What's included?

FORMAT & LICENSE

Choose an option

$0

Not sure what to choose?

Pointer link icon

FOUNDATION

Choose an option

+$0

OPTIONS

Choose Additional Options

+$0

Loading...

Modify this Plan

Receive a free modification quote within 3 business days.

Loading...

Start with a Cost Report

Calculate the cost to build & furnish your home.

Loading...
Loading...

Square Footage Breakdown

Total Heated Area

2,589 sq. ft.

1st Floor

1,537 sq. ft.

2nd Floor

1,052 sq. ft.

Basement Unfinished

1,436 sq. ft.

Storage

63 sq. ft.

Beds/Baths

Bedrooms

4 or 5

Full bathrooms

3 or 4

Foundation Type

Standard Foundations

Walkout

Exterior Walls

Exterior Walls

2x4

Optional Type(s)

2x6

Dimensions

Width

63' 4"

Depth

49' 10"

Max Ridge Height

31' 2"

Garage

Type

Attached

Area

380 sq. ft.

Count

2 Cars

Entry Location

Front

Roof Details

Framing Type

Truss

Architectural Style

Country

Plan Collections

Square Footage Breakdown

Total Heated Area

2,589 sq. ft.

1st Floor

1,537 sq. ft.

2nd Floor

1,052 sq. ft.

Basement Unfinished

1,436 sq. ft.

Storage

63 sq. ft.

Beds/Baths

Bedrooms

4 or 5

Full bathrooms

3 or 4

Foundation Type

Standard Foundations

Walkout

Exterior Walls

Exterior Walls

2x4

Optional Type(s)

2x6

Dimensions

Width

63' 4"

Depth

49' 10"

Max Ridge Height

31' 2"

Garage

Type

Attached

Area

380 sq. ft.

Count

2 Cars

Entry Location

Front

Roof Details

Framing Type

Truss

Plan Collections

* Please note that all sale prices and promotions featured on our website are subject to change without prior notice. While we strive to provide accurate and up-to-date information, occasional discrepancies may occur due to factors beyond our control. We encourage you to verify all details, including pricing and availability, before making any purchase. Exclusions or restrictions may apply to specific promotions. We reserve the right to modify or cancel any sale at our discretion. Thank you for your understanding and happy shopping!Let's go back to the top.