LogoLogo TaglineLogo Tagline
Loading...
Plan 970061VC

Fabulous Beach House with Bunk Room and Pool Deck

Heated S.F.
3,331
Beds
4 - 5
Baths
4
Stories
4
Cars
4

Floor Plan

Plan 970061VC

Main Level
Main Level
Second Level
Second Level
Third Level
Third Level
Lower Level
Lower Level

Plan 970061VC

M-F 9am-5pm EST |

1-203-761-8500

Main Level

Plan 970061VC: Fabulous Beach House with Bunk Room and Pool Deck - Floor Plan - Main Level - Beach, Coastal, Vacation

Second Level

Plan 970061VC: Fabulous Beach House with Bunk Room and Pool Deck - Floor Plan - Second Level - Beach, Coastal, Vacation

Third Level

Plan 970061VC: Fabulous Beach House with Bunk Room and Pool Deck - Floor Plan - Third Level - Beach, Coastal, Vacation

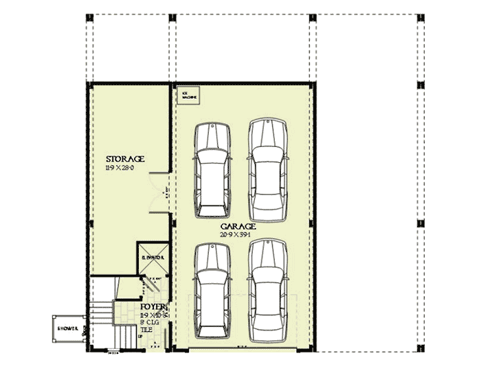
Lower Level

Plan 970061VC: Fabulous Beach House with Bunk Room and Pool Deck - Floor Plan - Lower Level - Beach, Coastal, Vacation

Plan Details

  • Enjoy the casual beach lifestyle with this fabulous Vacation house plan.
  • Start your tour on the ground level where four cars can easily be parked and a lower foyer has a residential elevator to whisk you up.
  • The huge, open main living area has a beamed ceiling to unite the cooking, eating and living areas.
  • A wrap-around deck offers both covered and uncovered spaces including room for a pool and outdoor dining area.
  • Use the office as an extra bedroom since it has a nearby bathroom.
  • Next level up contains the master suite with sliders to the second floor covered porch.
  • Two more bedrooms and a laundry room complete this level.
  • Topside is a fun bunk room where the kids can bring friends to stay over.

What's Included

  • Title Sheet. This page includes a color rendering of your home and an index of the complete set.
  • Floor Plans, Roof Plans and Foundation Plans. These plans detail the location, dimension and structural requirements of your home. Roof plans also illustrate pitch, composition and overhang sizes. Framers use this information for project estimates and to plan work on-site.
  • Exterior Elevations: front,rear and side elevation views, illustrating exterior materials, details, wall heights, roof pitches, window location and sizes.
  • Building Construction Details. This section gives your builder ceiling heights, a sense of overall home construction and wall sections, including material call outs, eave detail, roof pitch and foundation construction.
  • Recommended Interior & Exterior Trim and Detailing. Every home was specifically designed to achieve a highly livable and comfortably beautiful, proportioned space. For that reason, each blueprint comes with recommended styles for your interior and exterior doors, window trim, baseboards, garage doors and, if applicable to your house style, columns and brackets.

What's Not Included

  • Architectural or Engineering Stamp - handled locally if required 
  • Site Plan - handled locally when required 
  • Mechanical Drawings (location of heating and air equipment and duct work) - your subcontractors handle this 
  • Plumbing Drawings (drawings showing the actual plumbing pipe sizes and locations) - your subcontractors handle this 
  • Energy calculations - handled locally when required 

Starting at

Loading...
Price Match Guarantee
What's included?

FORMAT & LICENSE

Choose an option

$0

Not sure what to choose?

Pointer link icon

FOUNDATION

Choose an option

+$0

OPTIONS

Choose Additional Options

+$0

Loading...

Modify this Plan

Receive a free modification quote within 3 business days.

Loading...

Start with a Cost Report

Calculate the cost to build & furnish your home.

Loading...
Loading...

Square Footage Breakdown

Total Heated Area

3,331 sq. ft.

Lower Level

172 sq. ft.

1st Floor

1,360 sq. ft.

2nd Floor

1,267 sq. ft.

3rd Floor

532 sq. ft.

Porch, Rear

340 sq. ft.

Deck

800 sq. ft.

Beds/Baths

Bedrooms

4 or 5

Full bathrooms

4

Foundation Type

Standard Foundations

Slab

Exterior Walls

Exterior Walls

2x4

Dimensions

Width

50' 0"

Depth

50' 0"

Garage

Type

Drive Under

Area

1189 sq. ft.

Count

4 Cars

Entry Location

Front

Architectural Style

Beach

Square Footage Breakdown

Total Heated Area

3,331 sq. ft.

Lower Level

172 sq. ft.

1st Floor

1,360 sq. ft.

2nd Floor

1,267 sq. ft.

3rd Floor

532 sq. ft.

Porch, Rear

340 sq. ft.

Deck

800 sq. ft.

Beds/Baths

Bedrooms

4 or 5

Full bathrooms

4

Foundation Type

Standard Foundations

Slab

Exterior Walls

Exterior Walls

2x4

Dimensions

Width

50' 0"

Depth

50' 0"

Garage

Type

Drive Under

Area

1189 sq. ft.

Count

4 Cars

Entry Location

Front

Architectural Style

* Please note that all sale prices and promotions featured on our website are subject to change without prior notice. While we strive to provide accurate and up-to-date information, occasional discrepancies may occur due to factors beyond our control. We encourage you to verify all details, including pricing and availability, before making any purchase. Exclusions or restrictions may apply to specific promotions. We reserve the right to modify or cancel any sale at our discretion. Thank you for your understanding and happy shopping!Let's go back to the top.