Exclusive


Total Heated Area
2,476 sq. ft.
1st Floor
1,840 sq. ft.
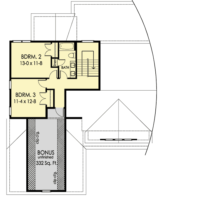
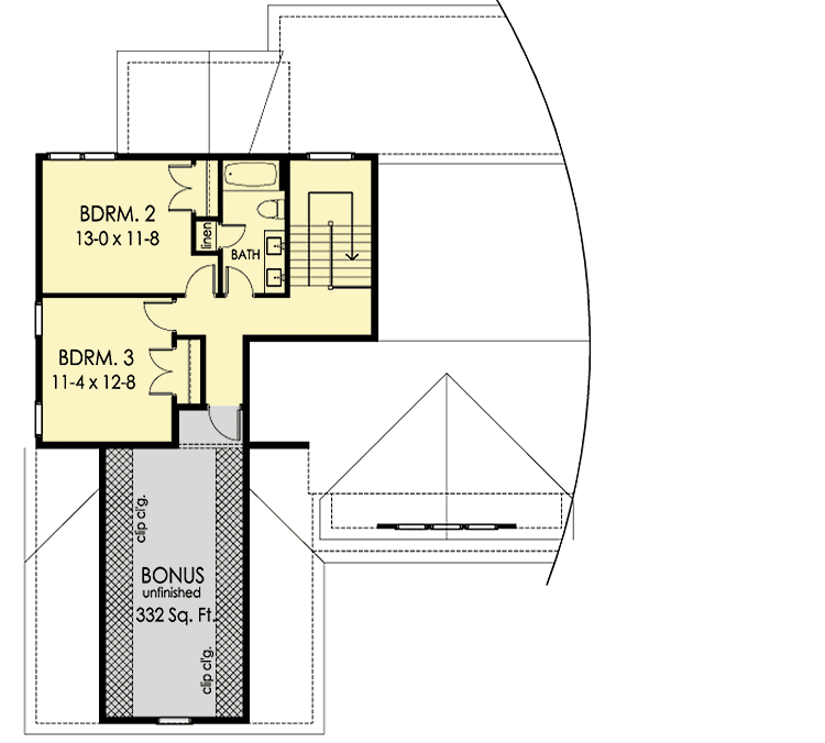
2nd Floor
636 sq. ft.
Basement Unfinished
1,840 sq. ft.
Bonus
332 sq. ft.
Porch, Front
131 sq. ft.
Porch, Rear
203 sq. ft.
Porch, Combined
334 sq. ft.
Deck
374 sq. ft.
Bedrooms
3
Full bathrooms
2
Half bathrooms
1
Standard Foundations
Basement
Exterior Walls
2x6
Width
66' 8"
Depth
61' 8"
Max Ridge Height
31' 2"
Type
Attached
Area
574 sq. ft.
Count
2 Cars
Entry Location
Front
First Floor
9'
Second Floor
8'
Kitchen
10' 0''
Dining
10' 0''
Primary Pitch
12 on 12
Secondary Pitch
12 on 12
Framing Type
Stick And Truss
Total Heated Area
2,476 sq. ft.
1st Floor
1,840 sq. ft.
2nd Floor
636 sq. ft.
Basement Unfinished
1,840 sq. ft.
Bonus
332 sq. ft.
Porch, Front
131 sq. ft.
Porch, Rear
203 sq. ft.
Porch, Combined
334 sq. ft.
Deck
374 sq. ft.
Bedrooms
3
Full bathrooms
2
Half bathrooms
1
Standard Foundations
Basement
Exterior Walls
2x6
Width
66' 8"
Depth
61' 8"
Max Ridge Height
31' 2"
Type
Attached
Area
574 sq. ft.
Count
2 Cars
Entry Location
Front
First Floor
9'
Second Floor
8'
Kitchen
10' 0''
Dining
10' 0''
Primary Pitch
12 on 12
Secondary Pitch
12 on 12
Framing Type
Stick And Truss