


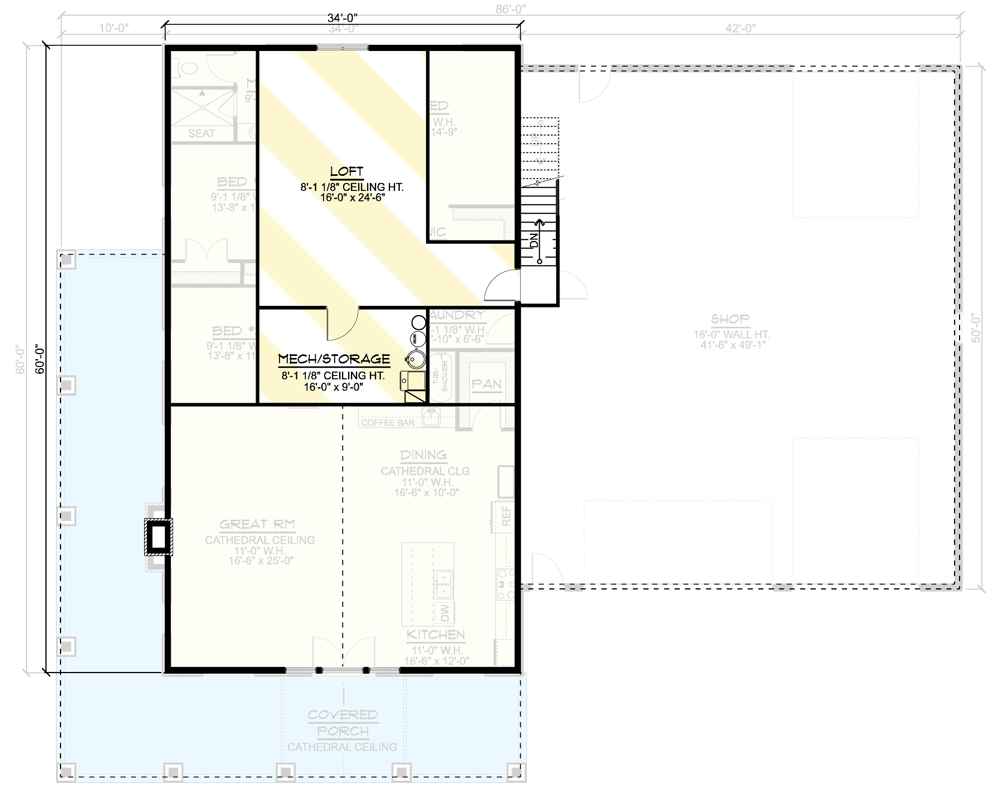
Total Heated Area
2,039 sq. ft.
1st Floor
2,039 sq. ft.
Bonus
626 sq. ft.
Porch, Combined
829 sq. ft.
Bedrooms
3
Full bathrooms
2
Standard Foundations
Slab
Exterior Walls
2x6
Width
86' 0"
Depth
70' 0"
Max Ridge Height
25' 8"
Type
Attached
Area
2123 sq. ft.
Count
3 Cars
Entry Location
Front
First Floor
9'
Second Floor
8'
Room
Ceiling Type
Height
Great Room
Vaulted
19' 0''
Primary Pitch
9 on 12
Secondary Pitch
4 on 12
Framing Type
Stick And Truss
Total Heated Area
2,039 sq. ft.
1st Floor
2,039 sq. ft.
Bonus
626 sq. ft.
Porch, Combined
829 sq. ft.
Bedrooms
3
Full bathrooms
2
Standard Foundations
Slab
Exterior Walls
2x6
Width
86' 0"
Depth
70' 0"
Max Ridge Height
25' 8"
Type
Attached
Area
2123 sq. ft.
Count
3 Cars
Entry Location
Front
First Floor
9'
Second Floor
8'
Room
Ceiling Type
Height
Great Room
Vaulted
19' 0''
Primary Pitch
9 on 12
Secondary Pitch
4 on 12
Framing Type
Stick And Truss