
This house plan has the following 7 sheets:
Starting at
Ready to Get Started?
Select your plan set options before checkout.
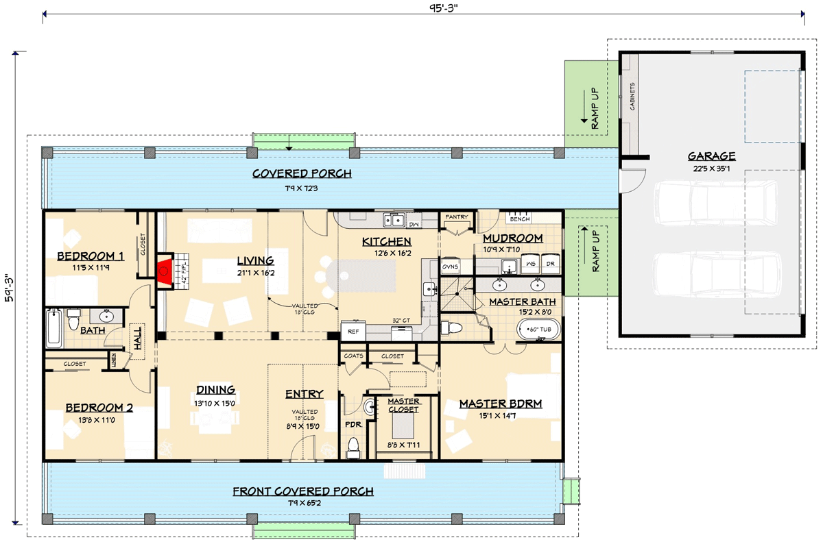
Total Heated Area
2,059 sq. ft.
1st Floor
2,059 sq. ft.
Porch, Front
515 sq. ft.
Porch, Rear
515 sq. ft.
Bedrooms
3
Full bathrooms
2
Half bathrooms
1
Standard Foundations
Crawl
Exterior Walls
2x4
Width
95' 5"
Depth
59' 3"
Max Ridge Height
24' 0"
Type
Attached
Area
836 sq. ft.
Count
3 Cars
Entry Location
Side
Primary Pitch
10 on 12
Secondary Pitch
4 on 12
Framing Type
Stick
Total Heated Area
2,059 sq. ft.
1st Floor
2,059 sq. ft.
Porch, Front
515 sq. ft.
Porch, Rear
515 sq. ft.
Bedrooms
3
Full bathrooms
2
Half bathrooms
1
Standard Foundations
Crawl
Exterior Walls
2x4
Width
95' 5"
Depth
59' 3"
Max Ridge Height
24' 0"
Type
Attached
Area
836 sq. ft.
Count
3 Cars
Entry Location
Side
Primary Pitch
10 on 12
Secondary Pitch
4 on 12
Framing Type
Stick