


Total Heated Area
2,473 sq. ft.
1st Floor
1,289 sq. ft.
2nd Floor
1,184 sq. ft.
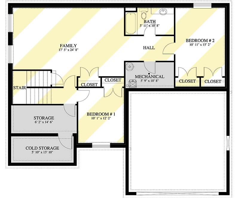
Optional Lower Level
1,350 sq. ft.
Bedrooms
4, 5, or 6
Full bathrooms
2 or 3
Half bathrooms
1
Standard Foundations
Basement
Exterior Walls
2x6
Width
49' 0"
Depth
42' 6"
Max Ridge Height
27' 6"
Type
Attached
Count
2 Cars
Entry Location
Front
Lower Level
8'
First Floor
9'
Second Floor
8'
Primary Pitch
7 on 12
Total Heated Area
2,473 sq. ft.
1st Floor
1,289 sq. ft.
2nd Floor
1,184 sq. ft.
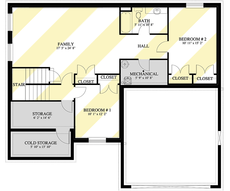
Optional Lower Level
1,350 sq. ft.
Bedrooms
4, 5, or 6
Full bathrooms
2 or 3
Half bathrooms
1
Standard Foundations
Basement
Exterior Walls
2x6
Width
49' 0"
Depth
42' 6"
Max Ridge Height
27' 6"
Type
Attached
Count
2 Cars
Entry Location
Front
Lower Level
8'
First Floor
9'
Second Floor
8'
Primary Pitch
7 on 12