Exclusive



Total Heated Area
11,232 sq. ft.
Lower Level
5,771 sq. ft.
1st Floor
2,814 sq. ft.
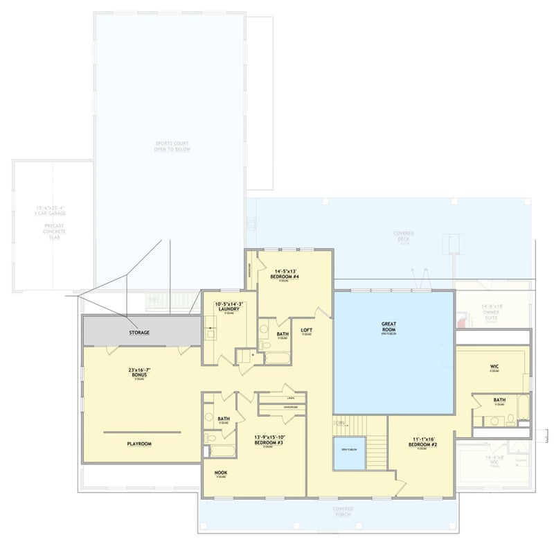
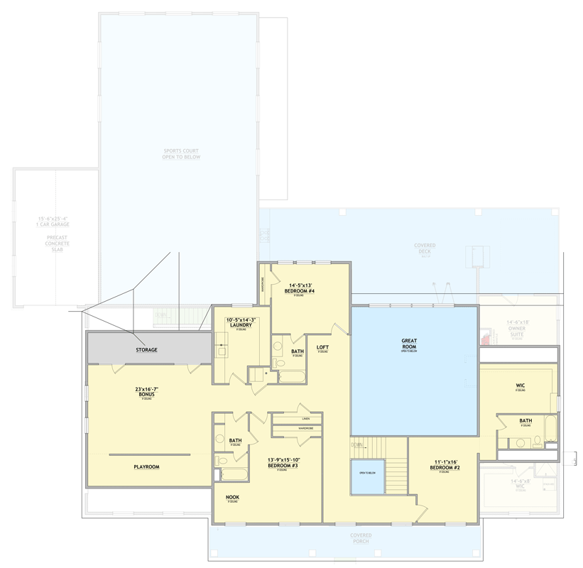
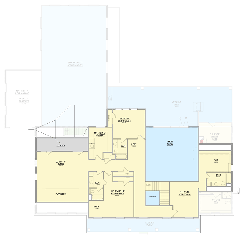
2nd Floor
2,647 sq. ft.
Bedrooms
6
Full bathrooms
6
Half bathrooms
1
Standard Foundations
Walkout
Exterior Walls
2x6
Width
102' 0"
Depth
101' 9"
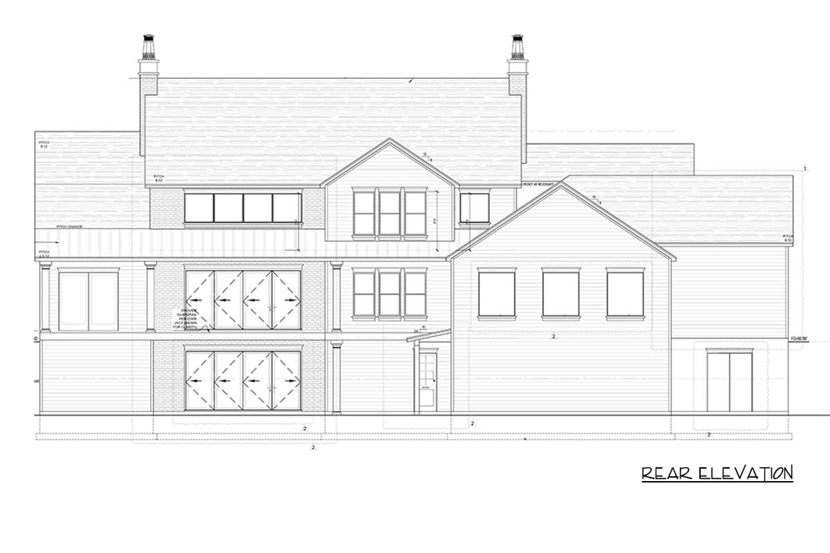
Max Ridge Height
36' 0"
Type
Standard
Area
1276 sq. ft.
Count
4 Cars
Entry Location
Front, Side
Lower Level
10'
First Floor
10'
Second Floor
9'
Primary Pitch
8 on 12
Framing Type
Truss
Total Heated Area
11,232 sq. ft.
Lower Level
5,771 sq. ft.
1st Floor
2,814 sq. ft.
2nd Floor
2,647 sq. ft.
Bedrooms
6
Full bathrooms
6
Half bathrooms
1
Standard Foundations
Walkout
Exterior Walls
2x6
Width
102' 0"
Depth
101' 9"
Max Ridge Height
36' 0"
Type
Standard
Area
1276 sq. ft.
Count
4 Cars
Entry Location
Front, Side
Lower Level
10'
First Floor
10'
Second Floor
9'
Primary Pitch
8 on 12
Framing Type
Truss