

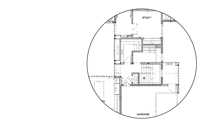
Total Heated Area
2,749 sq. ft.
1st Floor
2,749 sq. ft.
Bedrooms
3
Full bathrooms
2
Half bathrooms
1
Standard Foundations
Crawl, Slab
Exterior Walls
2x6
Width
73' 0"
Depth
81' 6"
Max Ridge Height
25' 8"
Type
Attached
Area
548 sq. ft.
Count
2 Cars
Entry Location
Side
First Floor
9'
Primary Pitch
12 on 12
Framing Type
Stick And Truss
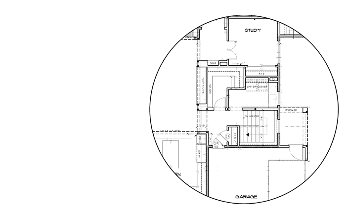
Total Heated Area
2,749 sq. ft.
1st Floor
2,749 sq. ft.
Bedrooms
3
Full bathrooms
2
Half bathrooms
1
Standard Foundations
Crawl, Slab
Exterior Walls
2x6
Width
73' 0"
Depth
81' 6"
Max Ridge Height
25' 8"
Type
Attached
Area
548 sq. ft.
Count
2 Cars
Entry Location
Side
First Floor
9'
Primary Pitch
12 on 12
Framing Type
Stick And Truss