Exclusive



Total Heated Area
2,924 sq. ft.
1st Floor
2,010 sq. ft.
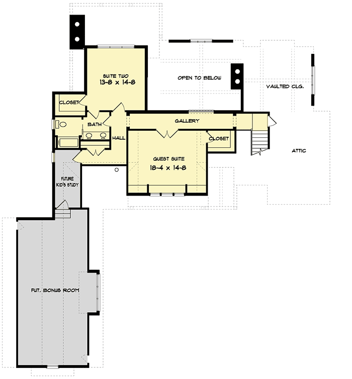
2nd Floor
914 sq. ft.
Bedrooms
3, 4, or 5
Full bathrooms
2, 3, or 4
Half bathrooms
1
Standard Foundations
Walkout
Exterior Walls
2x6
Width
76' 10"
Depth
91' 3"
Type
Attached
Area
875 sq. ft.
Count
3 Cars
Entry Location
Courtyard
First Floor
10'
Total Heated Area
2,924 sq. ft.
1st Floor
2,010 sq. ft.
2nd Floor
914 sq. ft.
Bedrooms
3, 4, or 5
Full bathrooms
2, 3, or 4
Half bathrooms
1
Standard Foundations
Walkout
Exterior Walls
2x6
Width
76' 10"
Depth
91' 3"
Type
Attached
Area
875 sq. ft.
Count
3 Cars
Entry Location
Courtyard
First Floor
10'