LogoLogo TaglineLogo Tagline
Loading...
Plan 36371TX

Luxury Home Plan With Sport Court

Heated S.F.
7,535
Beds
4
Baths
5.5
Stories
2
Cars
5

Floor Plan

Plan 36371TX

Main Level
Main Level
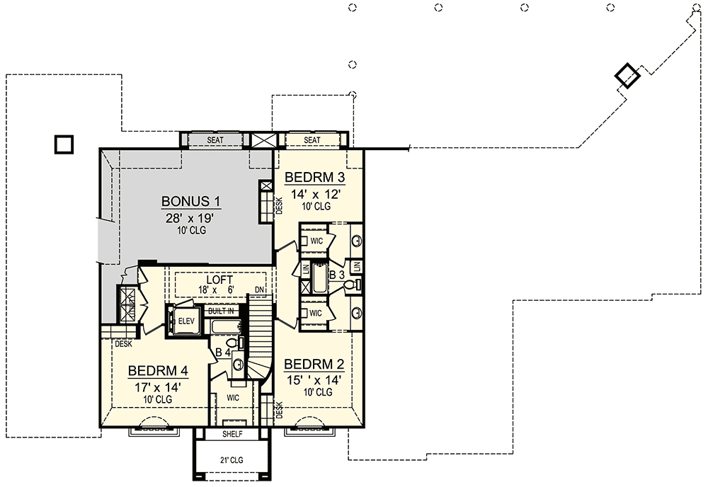
Second Level
Second Level
Lower Level
Lower Level

Plan 36371TX

M-F 9am-5pm EST |

1-203-761-8500

Main Level

Plan 36371TX: Luxury Home Plan With Sport Court - Floor Plan - Main Level - European, French Country, Traditional

Second Level

Plan 36371TX: Luxury Home Plan With Sport Court - Floor Plan - Second Level  - European, French Country, Traditional

Lower Level

Plan 36371TX: Luxury Home Plan With Sport Court - Floor Plan - Lower Level - European, French Country, Traditional

Plan Details

  • Designed for an athletic owner, this 5 4 bedroom luxury home plan comes with a finished lower level featuring a 17'x24' sport court plus an adjacent exercise room. After a game, hit the bar or take the elevator up to the main floor or upper floor. Or if you didn't work up a sweat, flop in the media room and catch a movie.
  • The large master suite is on the main floor and has a vaulted ceiling with exposed beams and a fireplace shared with the sitting room. That room opens to the veranda in back.
  • The living and family room flank the foyer. From the foyer, you have direct views through the family room to the veranda.
  • The outdoor lounge is a main attraction. It is 50' wide and has a fireplace and an outdoor kitchen.
  • Three bedrooms are on the upper floor and they share two baths and the use of the elevator.
  • If you want more room, you can expand into the bonus space and gain 1,054 more square feet.
  • The 78' depth includes the outdoor lounge.

What's Included

  • Cover sheet
  • Foundation Plan - schematic only 
  • First floor fully dimensioned floor plan with notes - All requisite aspects of the floor plan are precise, though the details of flooring material and non-structural aesthetics are left to the discretion of the buyer.
  • Second floor fully dimensioned floor plan with notes - Exact flooring materials, appliance selection and non-structural aesthetics are left to the discretion of the buyer.
  • First floor lighting and electrical plan - On this sheet you have a schematic of the lights, electrical plugs, phone locations, and code items such as smoke detectors.
  • Second floor lighting and electrical plan - On this sheet you have a schematic of the lights, electrical plugs, phone locations, and code items such as smoke detectors.
  • Front & rear elevations with notes-detailed drawings of the left and right sides of the home along with any notes and exterior dimensions that may be required to complete construction. The elevations show the contractor's exterior materials, general architectural design intent, types of openings and other details. All of our elevations are drawn to ¼ scale.
  • Left and right elevations with notes - detailed drawings of the left and right sides of the home along with any notes and exterior dimensions that may be required to complete construction. The elevations show the contractor's exterior materials, general architectural design intent, types of openings and other details. All of our elevations are drawn to ¼ scale.
  • Roof plan - This sheet roof plan is an integral piece of a well-designed set of elevations. Roof cuts are shown to demonstrate how the architectural design is intended to make the elevation aesthetically pleasing to the eye.
  • Sections page 
  • Standard detail sheets on construction. These sheets are used to cover a broad range of many everyday situations that may occur on a construction site. The detail sheets are current and accurate to the area and time of which the house was originally designed.

What's Not Included

  • Architectural or Engineering Stamp - handled locally if required
  • Site Plan - handled locally when required
  • Mechanical Drawings (location of heating and air equipment and duct work) - your subcontractors handle this
  • Plumbing Drawings (drawings showing the actual plumbing pipe sizes and locations) - your subcontractors handle this
  • Energy calculations - handled locally when required

Starting at

Loading...
Price Match Guarantee
What's included?

FORMAT & LICENSE

Choose an option

$0

Not sure what to choose?

Pointer link icon

FOUNDATION

Choose an option

+$0

OPTIONS

Choose Additional Options

+$0

Loading...

Modify this Plan

Receive a free modification quote within 3 business days.

Loading...

Start with a Cost Report

Calculate the cost to build & furnish your home.

Loading...
Loading...

Square Footage Breakdown

Total Heated Area

7,535 sq. ft.

Lower Level

2,635 sq. ft.

1st Floor

3,552 sq. ft.

2nd Floor

1,348 sq. ft.

Bonus

1,054 sq. ft.

Beds/Baths

Bedrooms

4

Full bathrooms

5

Half bathrooms

1

Foundation Type

Standard Foundations

Basement

Exterior Walls

Exterior Walls

2x4

Dimensions

Width

113' 0"

Depth

78' 0"

Max Ridge Height

35' 0"

Garage

Type

Attached

Area

1671 sq. ft.

Count

5 Cars

Entry Location

Front, Side

Ceiling Heights

Lower Level

9'

First Floor

10'

Second Floor

10'

Architectural Style

European

Plan Collections

Square Footage Breakdown

Total Heated Area

7,535 sq. ft.

Lower Level

2,635 sq. ft.

1st Floor

3,552 sq. ft.

2nd Floor

1,348 sq. ft.

Bonus

1,054 sq. ft.

Beds/Baths

Bedrooms

4

Full bathrooms

5

Half bathrooms

1

Foundation Type

Standard Foundations

Basement

Exterior Walls

Exterior Walls

2x4

Dimensions

Width

113' 0"

Depth

78' 0"

Max Ridge Height

35' 0"

Garage

Type

Attached

Area

1671 sq. ft.

Count

5 Cars

Entry Location

Front, Side

Ceiling Heights

Lower Level

9'

First Floor

10'

Second Floor

10'

Plan Collections

* Please note that all sale prices and promotions featured on our website are subject to change without prior notice. While we strive to provide accurate and up-to-date information, occasional discrepancies may occur due to factors beyond our control. We encourage you to verify all details, including pricing and availability, before making any purchase. Exclusions or restrictions may apply to specific promotions. We reserve the right to modify or cancel any sale at our discretion. Thank you for your understanding and happy shopping!Let's go back to the top.