

Total Heated Area
5,716 sq. ft.
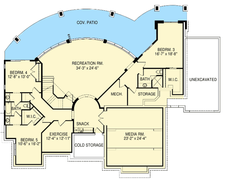
Lower Level
3,023 sq. ft.
1st Floor
2,693 sq. ft.
Deck
863 sq. ft.
Covered Patio
863 sq. ft.
Storage
297 sq. ft.
Bedrooms
4 or 5
Full bathrooms
4
Standard Foundations
Walkout
Exterior Walls
2x6
Width
92' 4"
Depth
71' 10"
Max Ridge Height
22' 9"
Type
Attached
Area
1215 sq. ft.
Count
3 Cars
Entry Location
Front, Side
Lower Level
10'
First Floor
10'
Primary Pitch
6 on 12
Secondary Pitch
3 on 12
Total Heated Area
5,716 sq. ft.
Lower Level
3,023 sq. ft.
1st Floor
2,693 sq. ft.
Deck
863 sq. ft.
Covered Patio
863 sq. ft.
Storage
297 sq. ft.
Bedrooms
4 or 5
Full bathrooms
4
Standard Foundations
Walkout
Exterior Walls
2x6
Width
92' 4"
Depth
71' 10"
Max Ridge Height
22' 9"
Type
Attached
Area
1215 sq. ft.
Count
3 Cars
Entry Location
Front, Side
Lower Level
10'
First Floor
10'
Primary Pitch
6 on 12
Secondary Pitch
3 on 12