

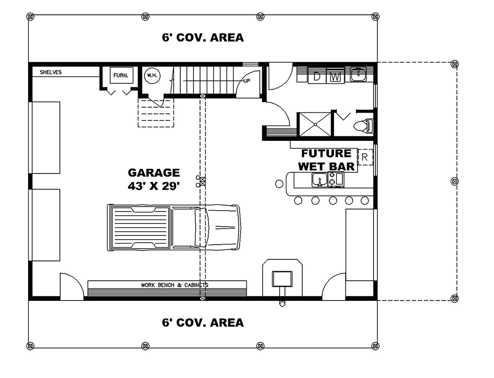
Total Heated Area
1,320 sq. ft.
1st Floor
1,320 sq. ft.
Bedrooms
0
Full bathrooms
1 or 2
Standard Foundations
Slab
Exterior Walls
2x6
Width
30' 0"
Depth
44' 0"
Max Ridge Height
22' 9"
Type
Drive Under, Detached
Area
1320 sq. ft.
Count
2 Cars
Entry Location
Side
Lower Level
0' 9"
First Floor
7' 9"
Primary Pitch
7 on 12
Secondary Pitch
4 on 12
Framing Type
Truss
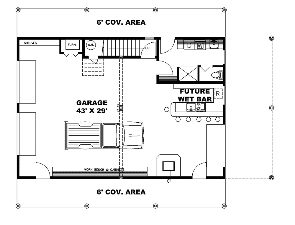
Total Heated Area
1,320 sq. ft.
1st Floor
1,320 sq. ft.
Bedrooms
0
Full bathrooms
1 or 2
Standard Foundations
Slab
Exterior Walls
2x6
Width
30' 0"
Depth
44' 0"
Max Ridge Height
22' 9"
Type
Drive Under, Detached
Area
1320 sq. ft.
Count
2 Cars
Entry Location
Side
Lower Level
0' 9"
First Floor
7' 9"
Primary Pitch
7 on 12
Secondary Pitch
4 on 12
Framing Type
Truss