
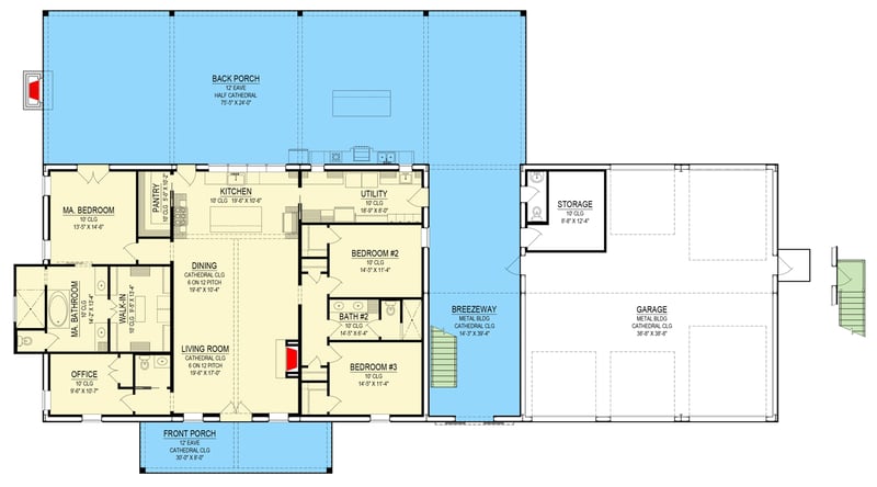
Total Heated Area
2,488 sq. ft.
1st Floor
2,488 sq. ft.
Bedrooms
3
Full bathrooms
2
Half bathrooms
2
Standard Foundations
Monolithic Slab
Exterior Walls
Metal
Optional Type(s)
2x6
Width
119' 4"
Depth
72' 3"
Max Ridge Height
22' 10"
Type
Standard, Drive Under
Area
1434 sq. ft.
Count
4 or 5 Cars
Entry Location
Front, Rear
First Floor
10'
Primary Pitch
4 on 12
Secondary Pitch
6 on 12
Framing Type
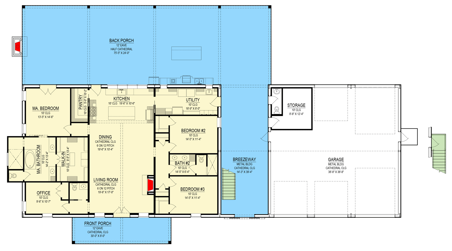
Total Heated Area
2,488 sq. ft.
1st Floor
2,488 sq. ft.
Bedrooms
3
Full bathrooms
2
Half bathrooms
2
Standard Foundations
Monolithic Slab
Exterior Walls
Metal
Optional Type(s)
2x6
Width
119' 4"
Depth
72' 3"
Max Ridge Height
22' 10"
Type
Standard, Drive Under
Area
1434 sq. ft.
Count
4 or 5 Cars
Entry Location
Front, Rear
First Floor
10'
Primary Pitch
4 on 12
Secondary Pitch
6 on 12
Framing Type