

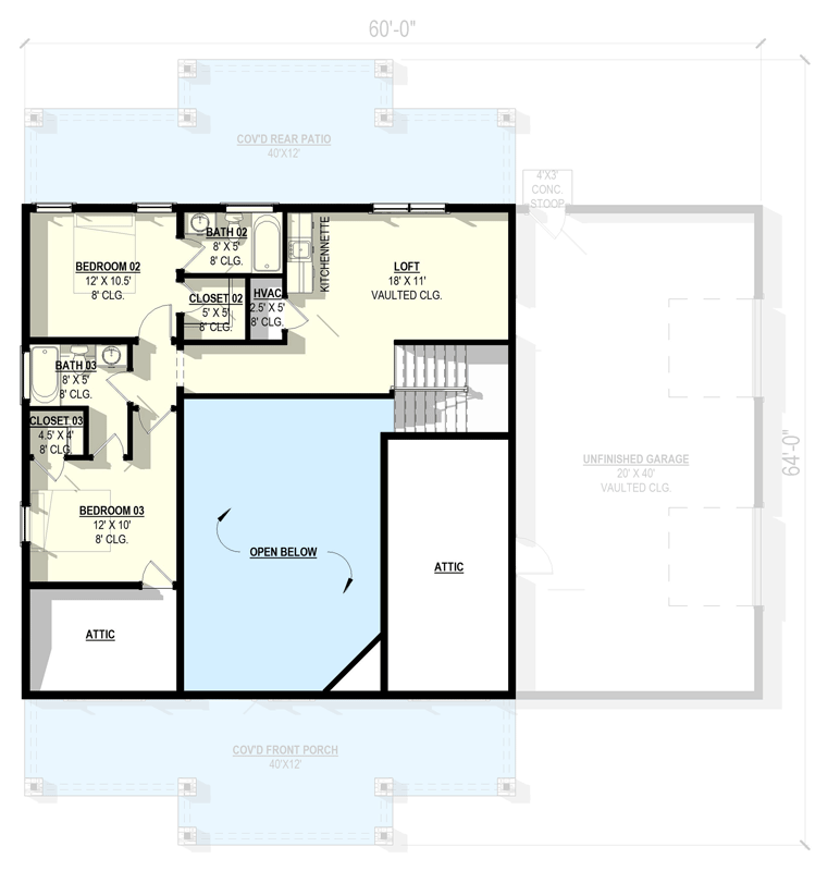
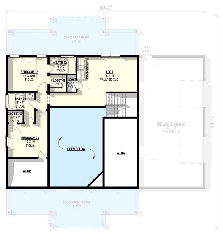
Total Heated Area
2,372 sq. ft.
1st Floor
1,588 sq. ft.
2nd Floor
784 sq. ft.
Porch, Front
390 sq. ft.
Covered Patio
390 sq. ft.
Bedrooms
3
Full bathrooms
3
Standard Foundations
Monolithic Slab, Post/Beam, Post Frame, Slab
Exterior Walls
2x6
Width
60' 0"
Depth
64' 0"
Type
Standard
Area
812 sq. ft.
Count
2 Cars
Entry Location
Side
First Floor
9'
Second Floor
8'
Room
Ceiling Type
Height
Living Room
Vaulted
0' 0''
Primary Pitch
8 on 12
Framing Type
Stick Or Truss
Total Heated Area
2,372 sq. ft.
1st Floor
1,588 sq. ft.
2nd Floor
784 sq. ft.
Porch, Front
390 sq. ft.
Covered Patio
390 sq. ft.
Bedrooms
3
Full bathrooms
3
Standard Foundations
Monolithic Slab, Post/Beam, Post Frame, Slab
Exterior Walls
2x6
Width
60' 0"
Depth
64' 0"
Type
Standard
Area
812 sq. ft.
Count
2 Cars
Entry Location
Side
First Floor
9'
Second Floor
8'
Room
Ceiling Type
Height
Living Room
Vaulted
0' 0''
Primary Pitch
8 on 12
Framing Type
Stick Or Truss