

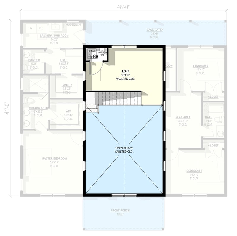
Total Heated Area
1,993 sq. ft.
1st Floor
1,993 sq. ft.
Porch, Front
152 sq. ft.
Covered Patio
198 sq. ft.
Bedrooms
3
Full bathrooms
2
Half bathrooms
1
Standard Foundations
Monolithic Slab, Post/Beam, Post Frame, Slab
Exterior Walls
2x6
Width
48' 0"
Depth
41' 0"
First Floor
9'
Room
Ceiling Type
Height
Living Room
Vaulted
0' 0''
Loft
Vaulted
0' 0''
Primary Pitch
8 on 12
Framing Type
Stick Or Truss
Total Heated Area
1,993 sq. ft.
1st Floor
1,993 sq. ft.
Porch, Front
152 sq. ft.
Covered Patio
198 sq. ft.
Bedrooms
3
Full bathrooms
2
Half bathrooms
1
Standard Foundations
Monolithic Slab, Post/Beam, Post Frame, Slab
Exterior Walls
2x6
Width
48' 0"
Depth
41' 0"
First Floor
9'
Room
Ceiling Type
Height
Living Room
Vaulted
0' 0''
Loft
Vaulted
0' 0''
Primary Pitch
8 on 12
Framing Type
Stick Or Truss