

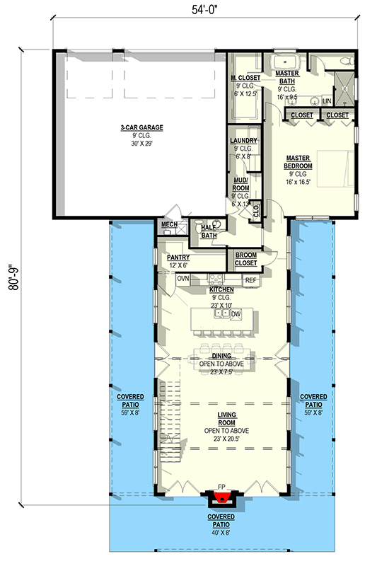
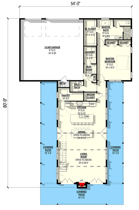
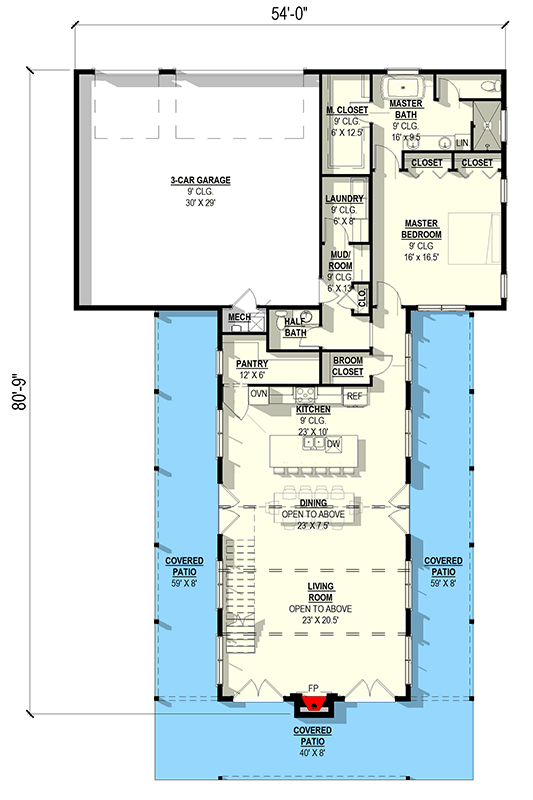
Total Heated Area
2,849 sq. ft.
1st Floor
1,839 sq. ft.
2nd Floor
1,010 sq. ft.
Porch, Combined
1,185 sq. ft.
Bedrooms
4
Full bathrooms
2
Half bathrooms
1
Standard Foundations
Monolithic Slab, Post/Beam, Post Frame, Slab
Exterior Walls
2x6
Width
54' 0"
Depth
89' 0"
Type
Attached
Area
934 sq. ft.
Count
2 Cars
Entry Location
Rear
First Floor
9'
Second Floor
8'
Room
Ceiling Type
Height
Great Room
Vaulted
0' 0''
Primary Pitch
6 on 12
Framing Type
Stick Or Truss
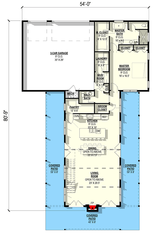
Total Heated Area
2,849 sq. ft.
1st Floor
1,839 sq. ft.
2nd Floor
1,010 sq. ft.
Porch, Combined
1,185 sq. ft.
Bedrooms
4
Full bathrooms
2
Half bathrooms
1
Standard Foundations
Monolithic Slab, Post/Beam, Post Frame, Slab
Exterior Walls
2x6
Width
54' 0"
Depth
89' 0"
Type
Attached
Area
934 sq. ft.
Count
2 Cars
Entry Location
Rear
First Floor
9'
Second Floor
8'
Room
Ceiling Type
Height
Great Room
Vaulted
0' 0''
Primary Pitch
6 on 12
Framing Type
Stick Or Truss