

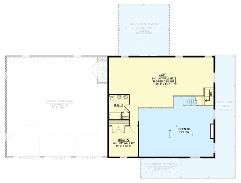
Total Heated Area
2,692 sq. ft.
1st Floor
1,680 sq. ft.
2nd Floor
1,012 sq. ft.
Bedrooms
2
Full bathrooms
2
Half bathrooms
1
Standard Foundations
Slab
Exterior Walls
2x6
Width
90' 0"
Depth
68' 0"
Max Ridge Height
27' 1"
Type
Standard, RV Garage
Area
1600 sq. ft.
Count
3 Cars
Entry Location
Front
Framing Type
Truss
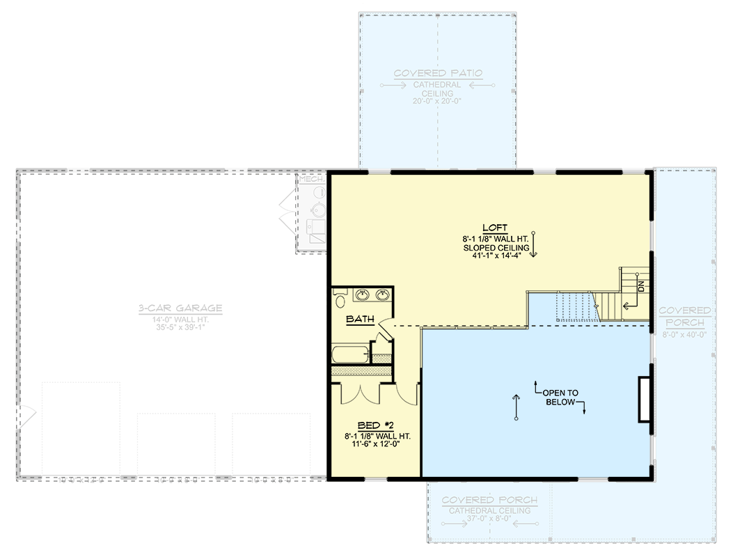
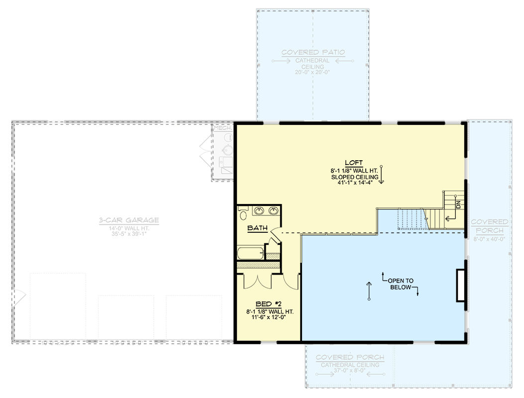
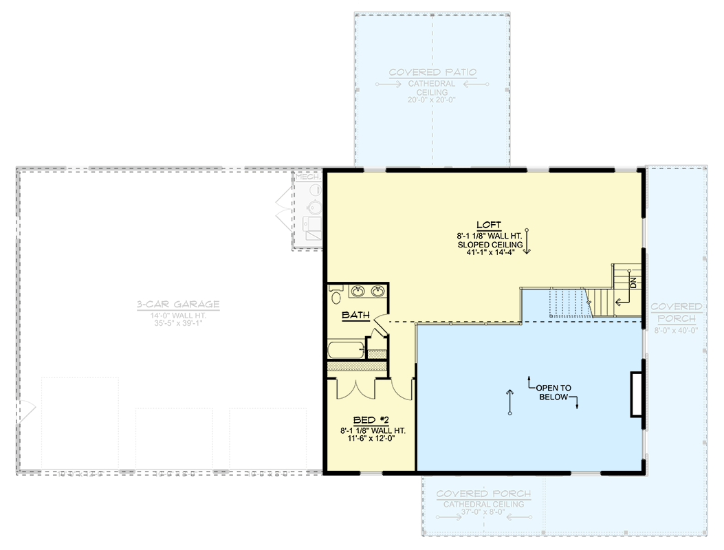
Total Heated Area
2,692 sq. ft.
1st Floor
1,680 sq. ft.
2nd Floor
1,012 sq. ft.
Bedrooms
2
Full bathrooms
2
Half bathrooms
1
Standard Foundations
Slab
Exterior Walls
2x6
Width
90' 0"
Depth
68' 0"
Max Ridge Height
27' 1"
Type
Standard, RV Garage
Area
1600 sq. ft.
Count
3 Cars
Entry Location
Front
Framing Type
Truss