

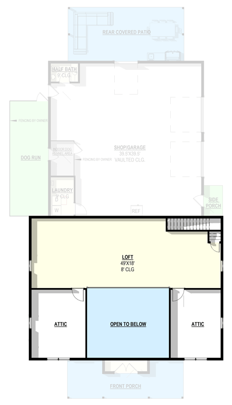
Total Heated Area
2,722 sq. ft.
1st Floor
1,892 sq. ft.
2nd Floor
860 sq. ft.
Porch, Front
298 sq. ft.
Covered Patio
420 sq. ft.
Bedrooms
3
Full bathrooms
2
Half bathrooms
1
Standard Foundations
Monolithic Slab, Slab
Exterior Walls
2x6
Width
50' 0"
Depth
80' 6"
Type
Attached
Area
1600 sq. ft.
Count
2 Cars
Entry Location
Side
First Floor
9'
Second Floor
8'
Room
Ceiling Type
Height
Living Room
Vaulted
0' 0''
Primary Pitch
6 on 12
Framing Type
Stick Or Truss
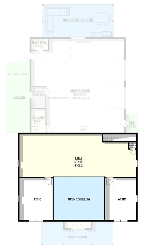
Total Heated Area
2,722 sq. ft.
1st Floor
1,892 sq. ft.
2nd Floor
860 sq. ft.
Porch, Front
298 sq. ft.
Covered Patio
420 sq. ft.
Bedrooms
3
Full bathrooms
2
Half bathrooms
1
Standard Foundations
Monolithic Slab, Slab
Exterior Walls
2x6
Width
50' 0"
Depth
80' 6"
Type
Attached
Area
1600 sq. ft.
Count
2 Cars
Entry Location
Side
First Floor
9'
Second Floor
8'
Room
Ceiling Type
Height
Living Room
Vaulted
0' 0''
Primary Pitch
6 on 12
Framing Type
Stick Or Truss