
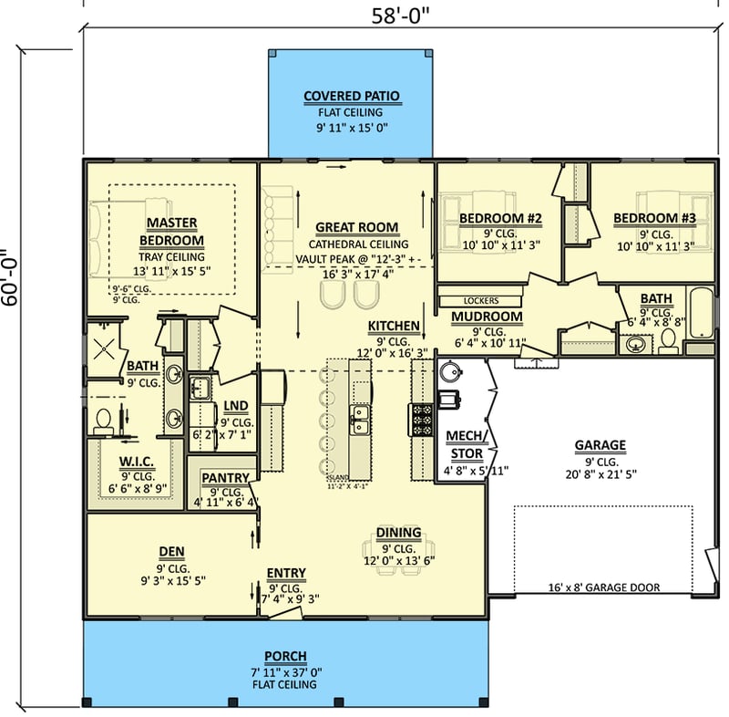
Total Heated Area
1,883 sq. ft.
1st Floor
1,883 sq. ft.
Porch, Front
296 sq. ft.
Porch, Rear
156 sq. ft.
Bedrooms
3
Full bathrooms
2
Standard Foundations
Slab
Exterior Walls
2x4
Optional Type(s)
2x6
Width
58' 0"
Depth
60' 0"
Max Ridge Height
23' 8"
Type
Attached
Area
510 sq. ft.
Count
2 Cars
Entry Location
Front
First Floor
9'
Great Room
12' 3''
Master Bedroom
9' 6''
Primary Pitch
12 on 12
Secondary Pitch
8 on 12
Framing Type
Truss
Total Heated Area
1,883 sq. ft.
1st Floor
1,883 sq. ft.
Porch, Front
296 sq. ft.
Porch, Rear
156 sq. ft.
Bedrooms
3
Full bathrooms
2
Standard Foundations
Slab
Exterior Walls
2x4
Optional Type(s)
2x6
Width
58' 0"
Depth
60' 0"
Max Ridge Height
23' 8"
Type
Attached
Area
510 sq. ft.
Count
2 Cars
Entry Location
Front
First Floor
9'
Great Room
12' 3''
Master Bedroom
9' 6''
Primary Pitch
12 on 12
Secondary Pitch
8 on 12
Framing Type
Truss