

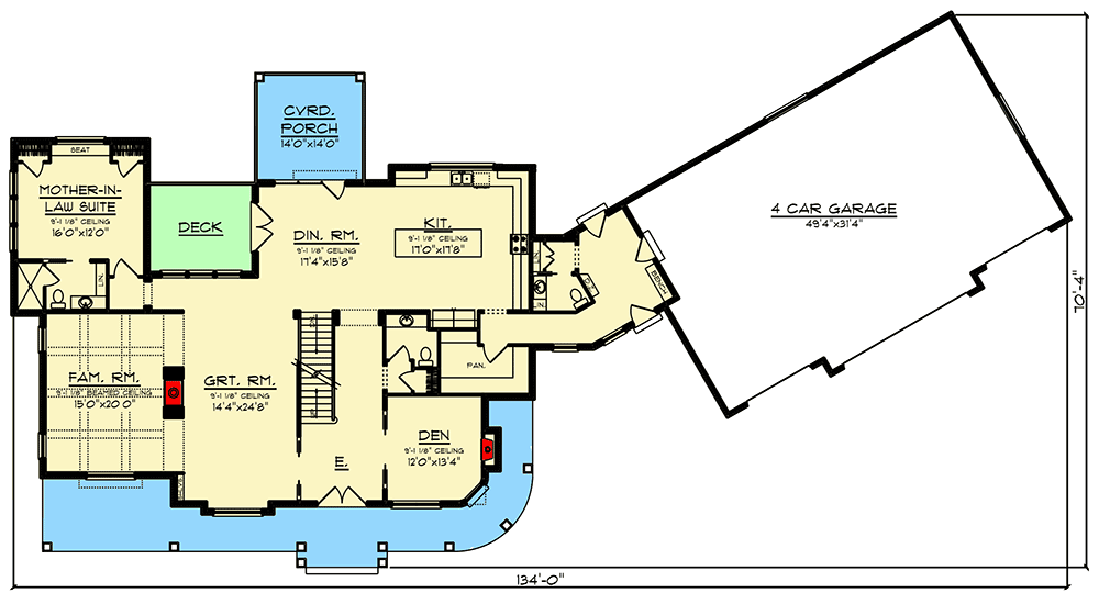
Total Heated Area
4,724 sq. ft.
1st Floor
2,686 sq. ft.
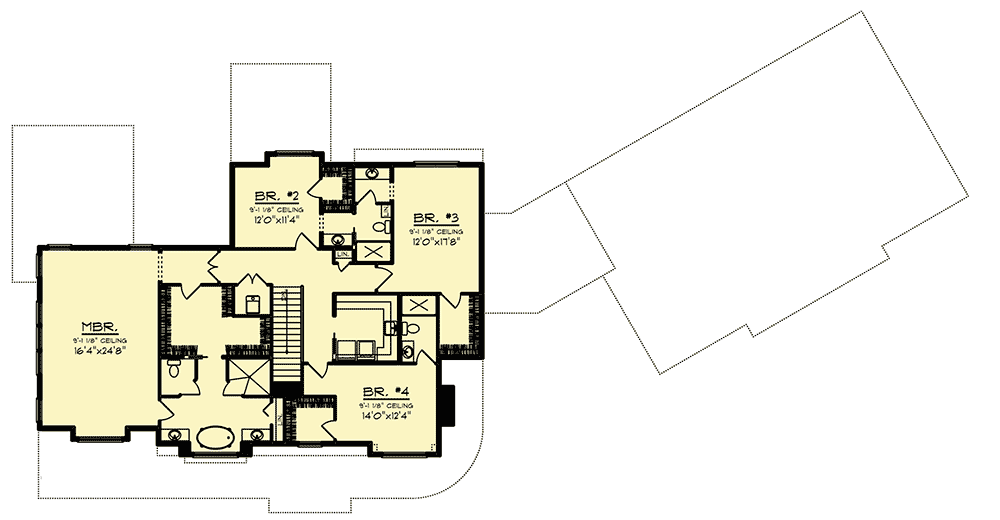
2nd Floor
2,038 sq. ft.
Porch, Combined
710 sq. ft.
Bedrooms
5
Full bathrooms
4
Half bathrooms
2
Standard Foundations
Basement
Exterior Walls
2x6
Width
134' 0"
Depth
70' 4"
Max Ridge Height
33' 6"
Type
Attached
Area
1516 sq. ft.
Count
4 Cars
Entry Location
Front
Lower Level
10'
First Floor
9'
Second Floor
9'
Primary Pitch
12 on 12
Secondary Pitch
8 on 12
Framing Type
Truss
Total Heated Area
4,724 sq. ft.
1st Floor
2,686 sq. ft.
2nd Floor
2,038 sq. ft.
Porch, Combined
710 sq. ft.
Bedrooms
5
Full bathrooms
4
Half bathrooms
2
Standard Foundations
Basement
Exterior Walls
2x6
Width
134' 0"
Depth
70' 4"
Max Ridge Height
33' 6"
Type
Attached
Area
1516 sq. ft.
Count
4 Cars
Entry Location
Front
Lower Level
10'
First Floor
9'
Second Floor
9'
Primary Pitch
12 on 12
Secondary Pitch
8 on 12
Framing Type
Truss