



Total Heated Area
2,652 sq. ft.
1st Floor
2,652 sq. ft.
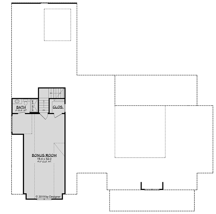
Bonus
669 sq. ft.
Porch, Front
256 sq. ft.
Porch, Rear
357 sq. ft.
Storage
186 sq. ft.
Bedrooms
3 or 4
Full bathrooms
2 or 3
Half bathrooms
1
Standard Foundations
Slab
Exterior Walls
2x4
Optional Type(s)
2x6
Width
76' 0"
Depth
78' 8"
Max Ridge Height
29' 0"
Type
Attached
Area
663 sq. ft.
Count
2 Cars
Entry Location
Side
Lower Level
9' 4"
First Floor
10'
Second Floor
9'
Primary Pitch
9 on 12
Secondary Pitch
12 on 12
Framing Type
Stick
Total Heated Area
2,652 sq. ft.
1st Floor
2,652 sq. ft.
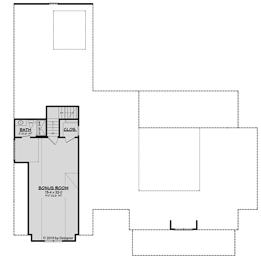
Bonus
669 sq. ft.
Porch, Front
256 sq. ft.
Porch, Rear
357 sq. ft.
Storage
186 sq. ft.
Bedrooms
3 or 4
Full bathrooms
2 or 3
Half bathrooms
1
Standard Foundations
Slab
Exterior Walls
2x4
Optional Type(s)
2x6
Width
76' 0"
Depth
78' 8"
Max Ridge Height
29' 0"
Type
Attached
Area
663 sq. ft.
Count
2 Cars
Entry Location
Side
Lower Level
9' 4"
First Floor
10'
Second Floor
9'
Primary Pitch
9 on 12
Secondary Pitch
12 on 12
Framing Type
Stick