

Total Heated Area
4,274 sq. ft.
1st Floor
2,978 sq. ft.
2nd Floor
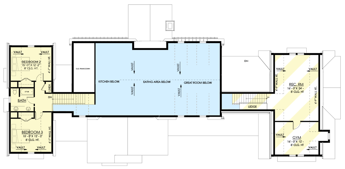
628 sq. ft.
Bonus
668 sq. ft.
Porch, Combined
67 sq. ft.
Deck
301 sq. ft.
Bedrooms
3
Full bathrooms
3
Half bathrooms
1
Standard Foundations
Crawl
Exterior Walls
2x6
Width
120' 0"
Depth
43' 3"
Max Ridge Height
27' 9"
Type
Attached
Area
1037 sq. ft.
Count
3 Cars
Entry Location
Side
First Floor
9'
Second Floor
8'
Primary Pitch
12 on 12
Secondary Pitch
10 on 12
Framing Type
Stick And Truss
Total Heated Area
4,274 sq. ft.
1st Floor
2,978 sq. ft.
2nd Floor
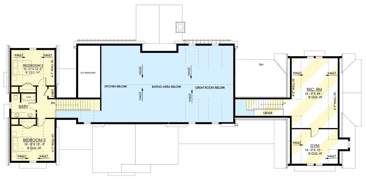
628 sq. ft.
Bonus
668 sq. ft.
Porch, Combined
67 sq. ft.
Deck
301 sq. ft.
Bedrooms
3
Full bathrooms
3
Half bathrooms
1
Standard Foundations
Crawl
Exterior Walls
2x6
Width
120' 0"
Depth
43' 3"
Max Ridge Height
27' 9"
Type
Attached
Area
1037 sq. ft.
Count
3 Cars
Entry Location
Side
First Floor
9'
Second Floor
8'
Primary Pitch
12 on 12
Secondary Pitch
10 on 12
Framing Type
Stick And Truss