Exclusive

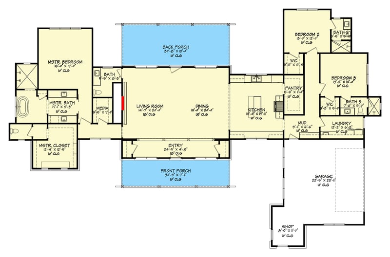
Total Heated Area
2,808 sq. ft.
1st Floor
2,808 sq. ft.
Porch, Front
256 sq. ft.
Porch, Rear
381 sq. ft.
Workshop
106 sq. ft.
Bedrooms
3
Full bathrooms
3
Half bathrooms
1
Standard Foundations
Monolithic Slab
Exterior Walls
2x4
Width
105' 4"
Depth
67' 5"
Max Ridge Height
27' 0"
Type
Attached
Area
531 sq. ft.
Count
2 Cars
Entry Location
Side
First Floor
10'
Clerestory
18' 0''
Primary Pitch
12 on 7
Secondary Pitch
12 on 3
Framing Type
Stick
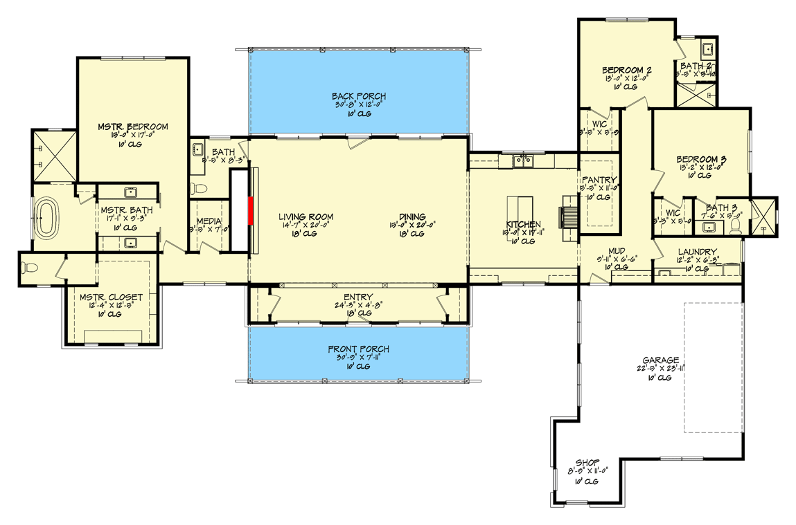
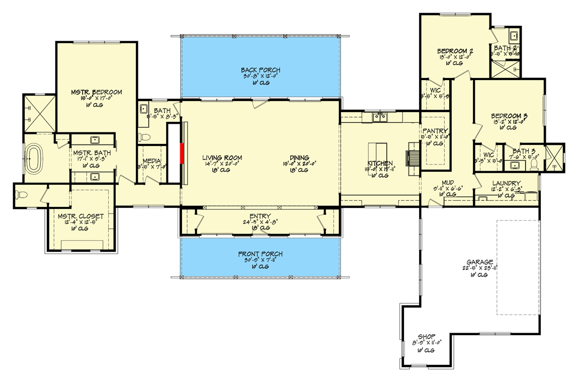
Total Heated Area
2,808 sq. ft.
1st Floor
2,808 sq. ft.
Porch, Front
256 sq. ft.
Porch, Rear
381 sq. ft.
Workshop
106 sq. ft.
Bedrooms
3
Full bathrooms
3
Half bathrooms
1
Standard Foundations
Monolithic Slab
Exterior Walls
2x4
Width
105' 4"
Depth
67' 5"
Max Ridge Height
27' 0"
Type
Attached
Area
531 sq. ft.
Count
2 Cars
Entry Location
Side
First Floor
10'
Clerestory
18' 0''
Primary Pitch
12 on 7
Secondary Pitch
12 on 3
Framing Type
Stick