

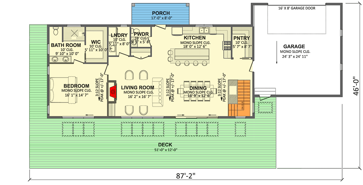
Total Heated Area
2,555 sq. ft.
Lower Level
1,056 sq. ft.
1st Floor
1,499 sq. ft.
Porch, Front
96 sq. ft.
Deck
1,143 sq. ft.
Bedrooms
3
Full bathrooms
2
Half bathrooms
1
Standard Foundations
Walkout
Exterior Walls
2x6
Width
87' 2"
Depth
46' 0"
Max Ridge Height
22' 3"
Type
Standard
Area
642 sq. ft.
Count
2 Cars
Entry Location
Front
First Floor
0' 10"
Primary Pitch
3 on 12
Framing Type
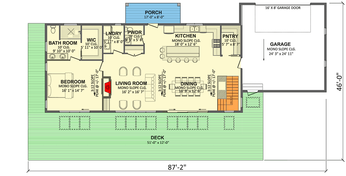
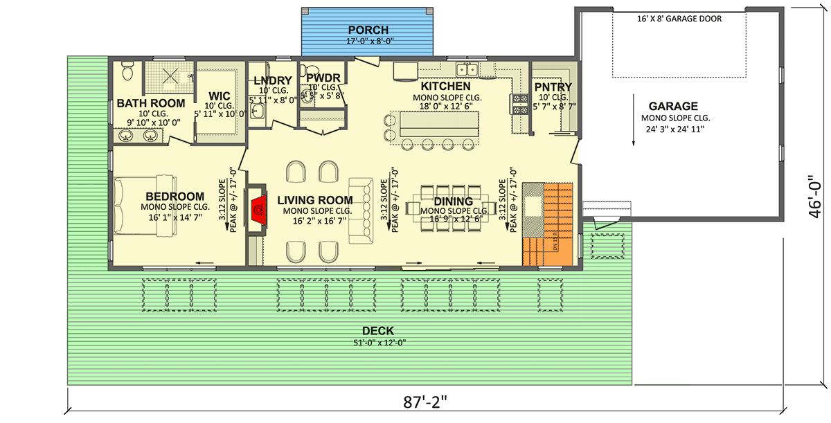
Total Heated Area
2,555 sq. ft.
Lower Level
1,056 sq. ft.
1st Floor
1,499 sq. ft.
Porch, Front
96 sq. ft.
Deck
1,143 sq. ft.
Bedrooms
3
Full bathrooms
2
Half bathrooms
1
Standard Foundations
Walkout
Exterior Walls
2x6
Width
87' 2"
Depth
46' 0"
Max Ridge Height
22' 3"
Type
Standard
Area
642 sq. ft.
Count
2 Cars
Entry Location
Front
First Floor
0' 10"
Primary Pitch
3 on 12
Framing Type