

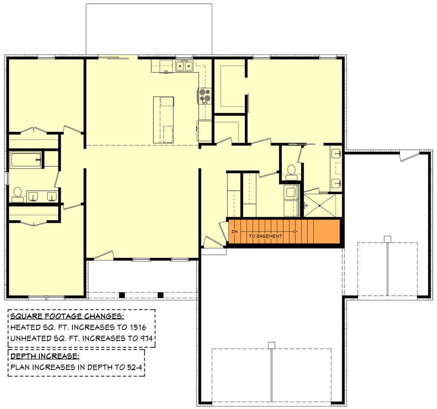
Total Heated Area
1,498 sq. ft.
1st Floor
1,498 sq. ft.
Porch, Front
96 sq. ft.
Bedrooms
3
Full bathrooms
2
Standard Foundations
Slab
Exterior Walls
2x4
Optional Type(s)
2x6
Width
64' 0"
Depth
48' 0"
Max Ridge Height
22' 0"
Type
Attached
Area
801 sq. ft.
Count
3 Cars
Entry Location
Front
First Floor
9'
Room
Ceiling Type
Height
Great Room
10' 0''
Primary Pitch
8 on 12
Framing Type
Stick
Total Heated Area
1,498 sq. ft.
1st Floor
1,498 sq. ft.
Porch, Front
96 sq. ft.
Bedrooms
3
Full bathrooms
2
Standard Foundations
Slab
Exterior Walls
2x4
Optional Type(s)
2x6
Width
64' 0"
Depth
48' 0"
Max Ridge Height
22' 0"
Type
Attached
Area
801 sq. ft.
Count
3 Cars
Entry Location
Front
First Floor
9'
Room
Ceiling Type
Height
Great Room
10' 0''
Primary Pitch
8 on 12
Framing Type
Stick