

Total Heated Area
3,285 sq. ft.
1st Floor
2,015 sq. ft.
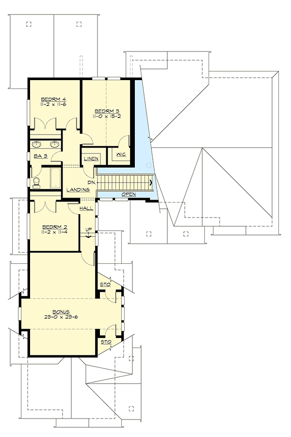
2nd Floor
1,270 sq. ft.
Porch, Rear
150 sq. ft.
Bedrooms
4 or 5
Full bathrooms
3
Standard Foundations
Crawl
Exterior Walls
2x6
Width
58' 0"
Depth
91' 0"
Max Ridge Height
26' 0"
Type
Attached
Area
765 sq. ft.
Count
3 Cars
Entry Location
Courtyard
Primary Pitch
8 on 12
Secondary Pitch
4 on 12
Framing Type
Truss
Total Heated Area
3,285 sq. ft.
1st Floor
2,015 sq. ft.
2nd Floor
1,270 sq. ft.
Porch, Rear
150 sq. ft.
Bedrooms
4 or 5
Full bathrooms
3
Standard Foundations
Crawl
Exterior Walls
2x6
Width
58' 0"
Depth
91' 0"
Max Ridge Height
26' 0"
Type
Attached
Area
765 sq. ft.
Count
3 Cars
Entry Location
Courtyard
Primary Pitch
8 on 12
Secondary Pitch
4 on 12
Framing Type
Truss