


Total Heated Area
9,870 sq. ft.
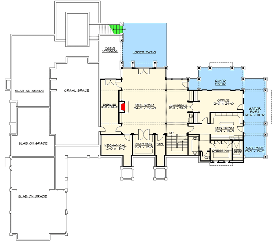
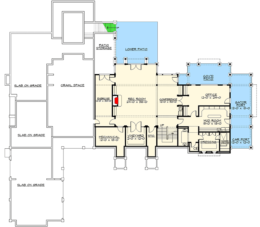
Lower Level
3,070 sq. ft.
1st Floor
5,350 sq. ft.
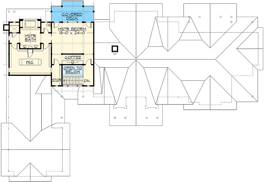
2nd Floor
1,450 sq. ft.
Bedrooms
4
Full bathrooms
6
Half bathrooms
1
Standard Foundations
Basement, Walkout
Exterior Walls
2x6
Width
144' 0"
Depth
100' 0"
Max Ridge Height
32' 0"
Type
Attached
Area
1205 sq. ft.
Count
3 Cars
Entry Location
Courtyard
Lower Level
10'
First Floor
10'
Second Floor
9'
Primary Pitch
8 on 12
Framing Type
Stick and Truss
Total Heated Area
9,870 sq. ft.
Lower Level
3,070 sq. ft.
1st Floor
5,350 sq. ft.
2nd Floor
1,450 sq. ft.
Bedrooms
4
Full bathrooms
6
Half bathrooms
1
Standard Foundations
Basement, Walkout
Exterior Walls
2x6
Width
144' 0"
Depth
100' 0"
Max Ridge Height
32' 0"
Type
Attached
Area
1205 sq. ft.
Count
3 Cars
Entry Location
Courtyard
Lower Level
10'
First Floor
10'
Second Floor
9'
Primary Pitch
8 on 12
Framing Type
Stick and Truss