

Total Heated Area
5,086 sq. ft.
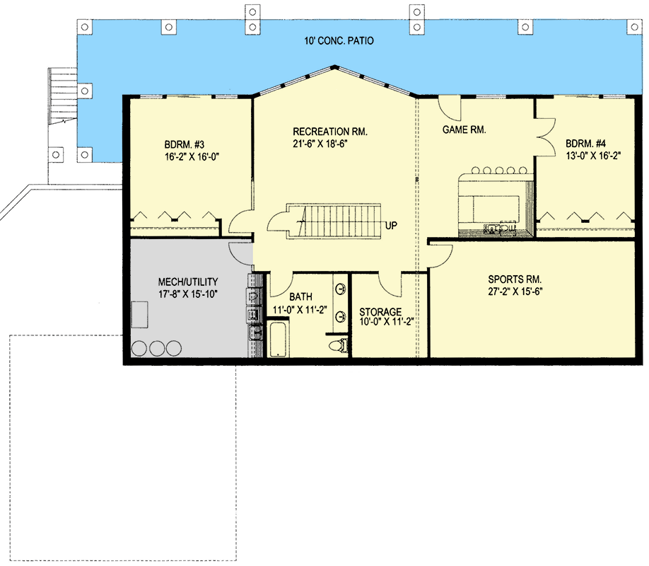
Lower Level
2,528 sq. ft.
1st Floor
2,558 sq. ft.
Bedrooms
4
Full bathrooms
3
Standard Foundations
Daylight
Exterior Walls
2x6
Width
84' 0"
Depth
74' 0"
Max Ridge Height
21' 0"
Type
Attached
Area
840 sq. ft.
Count
2 Cars
Entry Location
Front
First Floor
9'
Second Floor
9'
Primary Pitch
7 on 12
Secondary Pitch
N on N
Framing Type
Truss
Total Heated Area
5,086 sq. ft.
Lower Level
2,528 sq. ft.
1st Floor
2,558 sq. ft.
Bedrooms
4
Full bathrooms
3
Standard Foundations
Daylight
Exterior Walls
2x6
Width
84' 0"
Depth
74' 0"
Max Ridge Height
21' 0"
Type
Attached
Area
840 sq. ft.
Count
2 Cars
Entry Location
Front
First Floor
9'
Second Floor
9'
Primary Pitch
7 on 12
Secondary Pitch
N on N
Framing Type
Truss