


Total Heated Area
2,484 sq. ft.
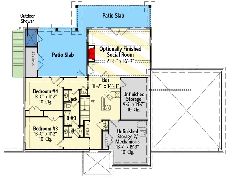
Lower Level
766 sq. ft.
1st Floor
1,718 sq. ft.
Bonus
372 sq. ft.
Storage
369 sq. ft.
Bedrooms
2, 3, or 4
Full bathrooms
2 or 3
Standard Foundations
Walkout
Exterior Walls
2x4
Optional Type(s)
2x6
Width
69' 9"
Depth
59' 0"
Max Ridge Height
25' 7"
Type
Attached
Area
608 sq. ft.
Count
2 Cars
Entry Location
Side
Lower Level
10' 1"
First Floor
10' 1"
Primary Pitch
12 on 12
Total Heated Area
2,484 sq. ft.
Lower Level
766 sq. ft.
1st Floor
1,718 sq. ft.
Bonus
372 sq. ft.
Storage
369 sq. ft.
Bedrooms
2, 3, or 4
Full bathrooms
2 or 3
Standard Foundations
Walkout
Exterior Walls
2x4
Optional Type(s)
2x6
Width
69' 9"
Depth
59' 0"
Max Ridge Height
25' 7"
Type
Attached
Area
608 sq. ft.
Count
2 Cars
Entry Location
Side
Lower Level
10' 1"
First Floor
10' 1"
Primary Pitch
12 on 12