

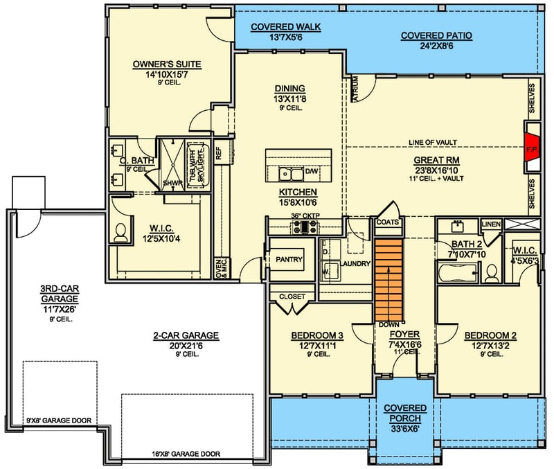
Total Heated Area
2,013 sq. ft.
1st Floor
2,013 sq. ft.
Basement Unfinished
1,982 sq. ft.
Bedrooms
3
Full bathrooms
2
Standard Foundations
Basement
Exterior Walls
2x6
Width
65' 6"
Depth
56' 0"
Max Ridge Height
25' 0"
Type
Standard
Area
757 sq. ft.
Count
3 Cars
Entry Location
Front
Lower Level
7' 9"
First Floor
9' 1"
Room
Ceiling Type
Height
Great Room
Cathedral
11' 1''
Foyer
11' 1''
Framing Type
Truss
Total Heated Area
2,013 sq. ft.
1st Floor
2,013 sq. ft.
Basement Unfinished
1,982 sq. ft.
Bedrooms
3
Full bathrooms
2
Standard Foundations
Basement
Exterior Walls
2x6
Width
65' 6"
Depth
56' 0"
Max Ridge Height
25' 0"
Type
Standard
Area
757 sq. ft.
Count
3 Cars
Entry Location
Front
Lower Level
7' 9"
First Floor
9' 1"
Room
Ceiling Type
Height
Great Room
Cathedral
11' 1''
Foyer
11' 1''
Framing Type
Truss