LogoLogo TaglineLogo Tagline
Loading...
Plan 500063VV

Exclusive

New American House Plan with Separate Game and Play Rooms

Heated S.F.
3,997
Beds
4
Baths
3.5
Stories
2
Cars
2

Floor Plan

Plan 500063VV

Main Level
Main Level
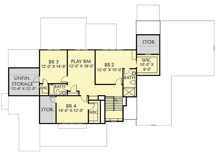
2nd Floor
2nd Floor

Plan 500063VV

M-F 9am-5pm EST |

1-203-761-8500

Main Level

Plan 500063VV: New American House Plan with Separate Game and Play Rooms - Floor Plan - Main Level - Country, Craftsman, New American, Northwest, Southern

2nd Floor

Plan 500063VV: New American House Plan with Separate Game and Play Rooms - Floor Plan - 2nd Floor - Country, Craftsman, New American, Northwest, Southern

Plan Details

  • This New American house plan fuses old-warm charm with all of the modern must-haves. The arched entryways and stone accents are carried throughout the interior, and ample storage space is provided on the second level.
  • True to its name, the great room offers exposed beams and a cozy fireplace with surrounding built-ins. The adjoining kitchen features an oversized prep island and a barn door reveals a roomy walk-in pantry.
  • A sizable game room occupies the right side of the home, along with a powder bath, laundry room and the 2-car garage. The mudroom lends a great transition space while storing outdoor gear.
  • The main-level, master bedroom offers privacy from the other bedrooms, and boasts a luxurious bathroom with dual closets and a standalone tub.
  • Upstairs, discover 3 bedrooms; one includes a full bath, and the others share the hall bath. A large play room rests in between the rooms, providing a space for the kids to enjoy, while stowing toys away from the main level.

What's Included

  • Cover sheet with notes
  • Foundation
  • Floor plans 
  • Elevations
  • Sections
  • Framing plans
  • Electrical plans 

What's Not Included

  • Architectural or Engineering Stamp - handled locally if required
  • Site Plan - handled locally when required
  • Mechanical Drawings (location of heating and air equipment and duct work) - your subcontractors handle this
  • Plumbing Drawings (drawings showing the actual plumbing pipe sizes and locations) - your subcontractors handle this
  • Energy calculations - handled locally when required

Starting at

Loading...
Price Match Guarantee
What's included?

FORMAT & LICENSE

Choose an option

$0

Not sure what to choose?

Pointer link icon

FOUNDATION

Choose an option

+$0

OPTIONS

Choose Additional Options

+$0

Loading...

Modify this Plan

Receive a free modification quote within 3 business days.

Loading...

Start with a Cost Report

Calculate the cost to build & furnish your home.

Loading...
Loading...

Square Footage Breakdown

Total Heated Area

3,997 sq. ft.

1st Floor

2,750 sq. ft.

2nd Floor

1,247 sq. ft.

Porch, Rear

52 sq. ft.

Screened Porch

281 sq. ft.

Entry

272 sq. ft.

Storage

173 sq. ft.

Beds/Baths

Bedrooms

4

Full bathrooms

3

Half bathrooms

1

Foundation Type

Standard Foundations

Crawl

Exterior Walls

Exterior Walls

2x4

Optional Type(s)

2x6

Dimensions

Width

94' 4"

Depth

64' 8"

Max Ridge Height

34' 0"

Garage

Type

Attached

Area

582 sq. ft.

Count

2 Cars

Entry Location

Side

Ceiling Heights

First Floor

10'

Second Floor

9'

Roof Details

Primary Pitch

10 on 12

Secondary Pitch

12 on 12

Framing Type

Stick And Truss

Architectural Style

Country

Plan Collections

Square Footage Breakdown

Total Heated Area

3,997 sq. ft.

1st Floor

2,750 sq. ft.

2nd Floor

1,247 sq. ft.

Porch, Rear

52 sq. ft.

Screened Porch

281 sq. ft.

Entry

272 sq. ft.

Storage

173 sq. ft.

Beds/Baths

Bedrooms

4

Full bathrooms

3

Half bathrooms

1

Foundation Type

Standard Foundations

Crawl

Exterior Walls

Exterior Walls

2x4

Optional Type(s)

2x6

Dimensions

Width

94' 4"

Depth

64' 8"

Max Ridge Height

34' 0"

Garage

Type

Attached

Area

582 sq. ft.

Count

2 Cars

Entry Location

Side

Ceiling Heights

First Floor

10'

Second Floor

9'

Roof Details

Primary Pitch

10 on 12

Secondary Pitch

12 on 12

Framing Type

Stick And Truss

Plan Collections

* Please note that all sale prices and promotions featured on our website are subject to change without prior notice. While we strive to provide accurate and up-to-date information, occasional discrepancies may occur due to factors beyond our control. We encourage you to verify all details, including pricing and availability, before making any purchase. Exclusions or restrictions may apply to specific promotions. We reserve the right to modify or cancel any sale at our discretion. Thank you for your understanding and happy shopping!Let's go back to the top.