

Total Heated Area
1,218 sq. ft.
1st Floor
251 sq. ft.
2nd Floor
967 sq. ft.
Bedrooms
1
Full bathrooms
2
Standard Foundations
Stem Wall
Exterior Walls
2x6
Width
50' 0"
Depth
48' 0"
Max Ridge Height
29' 1"
Type
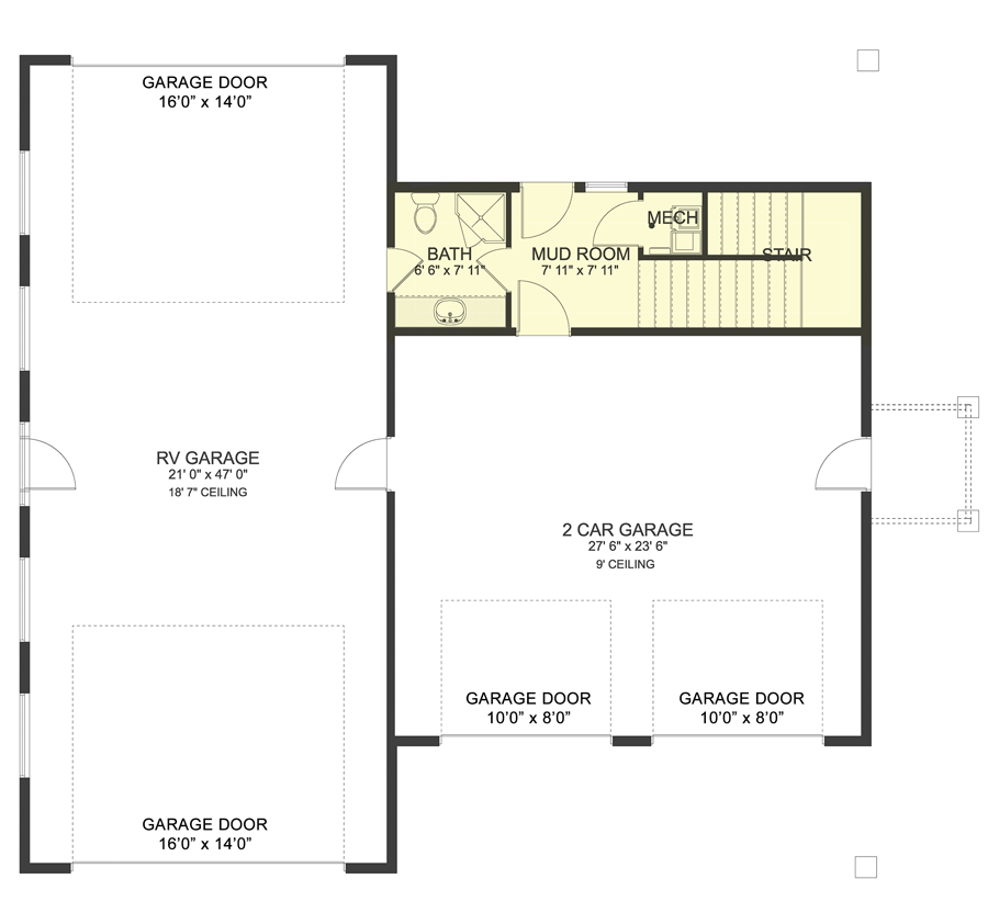
Detached, RV Garage
Area
1729 sq. ft.
Count
3 Cars
Entry Location
Front, Rear
First Floor
9'
Second Floor
8'
RV Garage
18' 7''
Primary Pitch
6 on 12
Framing Type
Truss
Total Heated Area
1,218 sq. ft.
1st Floor
251 sq. ft.
2nd Floor
967 sq. ft.
Bedrooms
1
Full bathrooms
2
Standard Foundations
Stem Wall
Exterior Walls
2x6
Width
50' 0"
Depth
48' 0"
Max Ridge Height
29' 1"
Type
Detached, RV Garage
Area
1729 sq. ft.
Count
3 Cars
Entry Location
Front, Rear
First Floor
9'
Second Floor
8'
RV Garage
18' 7''
Primary Pitch
6 on 12
Framing Type
Truss