


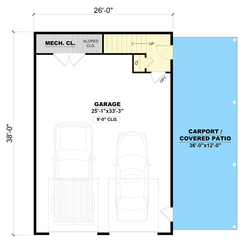
Total Heated Area
990 sq. ft.
1st Floor
58 sq. ft.
2nd Floor
932 sq. ft.
Carport
432 sq. ft.
Covered Patio
432 sq. ft.
Bedrooms
1
Full bathrooms
1
Standard Foundations
Slab
Exterior Walls
2x6
Width
38' 0"
Depth
38' 0"
Max Ridge Height
27' 2"
Type
Carport, Detached
Area
929 sq. ft.
Count
2 or 3 Cars
Entry Location
Front
First Floor
9'
Second Floor
8'
Primary Pitch
12 on 12
Secondary Pitch
7 on 12
Framing Type
Stick
Total Heated Area
990 sq. ft.
1st Floor
58 sq. ft.
2nd Floor
932 sq. ft.
Carport
432 sq. ft.
Covered Patio
432 sq. ft.
Bedrooms
1
Full bathrooms
1
Standard Foundations
Slab
Exterior Walls
2x6
Width
38' 0"
Depth
38' 0"
Max Ridge Height
27' 2"
Type
Carport, Detached
Area
929 sq. ft.
Count
2 or 3 Cars
Entry Location
Front
First Floor
9'
Second Floor
8'
Primary Pitch
12 on 12
Secondary Pitch
7 on 12
Framing Type
Stick