


Total Heated Area
3,717 sq. ft.
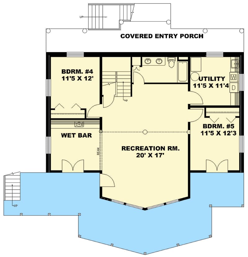
Lower Level
1,436 sq. ft.
1st Floor
1,436 sq. ft.
2nd Floor
845 sq. ft.
Bedrooms
5
Full bathrooms
3
Half bathrooms
1
Standard Foundations
Walkout
Exterior Walls
2x6
Width
46' 0"
Depth
52' 8"
Max Ridge Height
34' 6"
Lower Level
9'
First Floor
9'
Second Floor
8' 2"
Room
Ceiling Type
Height
Great Room
Cathedral
0' 0''
Loft
Vaulted
6' 2''
Primary Pitch
10 on 12
Secondary Pitch
9 on 12
Framing Type
Stick And Truss
Total Heated Area
3,717 sq. ft.
Lower Level
1,436 sq. ft.
1st Floor
1,436 sq. ft.
2nd Floor
845 sq. ft.
Bedrooms
5
Full bathrooms
3
Half bathrooms
1
Standard Foundations
Walkout
Exterior Walls
2x6
Width
46' 0"
Depth
52' 8"
Max Ridge Height
34' 6"
Lower Level
9'
First Floor
9'
Second Floor
8' 2"
Room
Ceiling Type
Height
Great Room
Cathedral
0' 0''
Loft
Vaulted
6' 2''
Primary Pitch
10 on 12
Secondary Pitch
9 on 12
Framing Type
Stick And Truss