LogoLogo TaglineLogo Tagline
Loading...
Plan 64496SC

One-Level Contemporary Home Plan with Tandem Garage

Heated S.F.
2,385
Beds
3 - 5
Baths
2 - 3
Stories
1
Cars
2

Floor Plan

Plan 64496SC

Main Level
Main Level
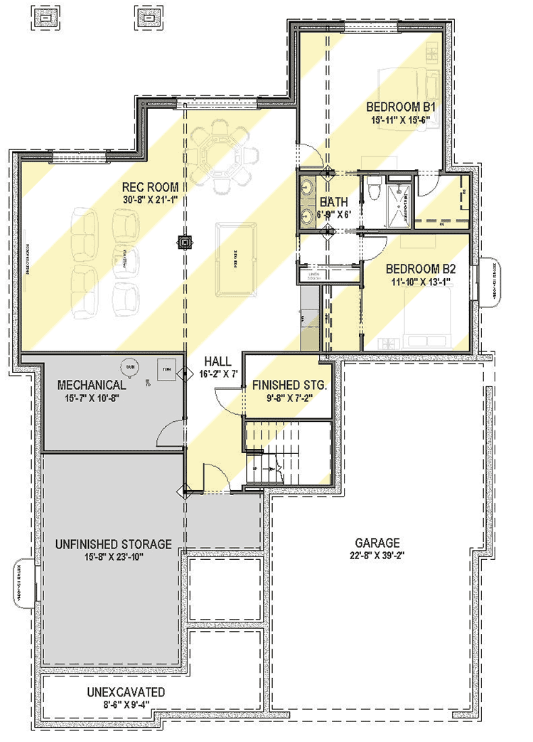
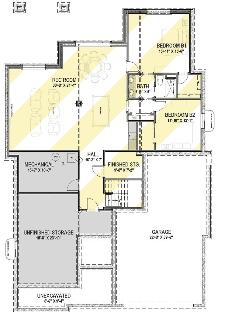
Optional Lower Level
Optional Lower Level

Plan 64496SC

M-F 9am-5pm EST |

1-203-761-8500

Main Level

Plan 64496SC: One-Level Contemporary Home Plan with Tandem Garage - Floor Plan - Main Level

Optional Lower Level

Plan 64496SC: One-Level Contemporary Home Plan with Tandem Garage - Floor Plan - Optional Lower Level

Plan Details

  • Low-pitched roof lines contribute to the sleek exterior on this Contemporary home plan, which features a 3-car garage with tandem parking.
  • Inside, a hallway to the left leads to two bedrooms separated by a full bath. Utilize one of the bedrooms as a home office, if preferred.
  • The heart of the home is rear facing and extends the living space onto the back deck for outdoor enjoyment. Minimal walls provide clean sightlines between the living room and eat-in kitchen.
  • Privately tucked away behind the garage, discover the master bedroom, complete with its own drop zone for personal items. The en suite includes 4 fixtures and a walk-in closet that connects with the laundry room.
  • Gain 1,810 sq. ft. of living space by finishing the lower level as designed, and enjoy a sizable recreation room, two bedrooms that share a Jack-and-Jill bath, and plenty of storage space.

What's Included

  • Cover Sheet - project statistics, including square footages, 3D images (typically), general notes and drawings sheet index.
  • Foundation/basement plan - showing room/wall layout, beams, posts and joist direction, and often electrical outlets, switches and light locations.
  • Main Level Plan - floor plan rooms and walls dimensioned, window and door sizes noted, plumbing, millwork locations and other general notes.
  • Upper Level Plan (if needed) - same information as Main Level.
  • Roof Plan - layout with pitch markers, dimensions and notes.
  • Main Level Electrical Plan - electrical outlets, switches and light locations shown.
  • Upper Level Electrical Plan (if needed) - electrical outlets, switches and light locations shown.
  • Exterior Elevations - Elevations of the Front and Right side with notes, dimensions and material designations.
  • Exterior Elevations - Elevations of the Back and Left side with notes, dimensions and material designations.
  • Sections and details - One or more building sections to show vertical relationships and construction plate heights, details as needed.
  • Interior Elevations and Details - mostly millwork, fireplace and other items that need additional explanation, details as needed.
View Sample Plan

What's Not Included

  • Architectural or Engineering Stamp - handled locally if required
  • Site Plan - handled locally when required
  • Mechanical Drawings (location of heating and air equipment and duct work) - your subcontractors handle this
  • Plumbing Drawings (drawings showing the actual plumbing pipe sizes and locations) - your subcontractors handle this
  • Energy calculations - handled locally when required

Starting at

Loading...
Price Match Guarantee
What's included?

FORMAT & LICENSE

Choose an option

$0

Not sure what to choose?

Pointer link icon

FOUNDATION

Choose an option

+$0

OPTIONS

Choose Additional Options

+$0

Loading...

Modify this Plan

Receive a free modification quote within 3 business days.

Loading...

Start with a Cost Report

Calculate the cost to build & furnish your home.

Loading...
Loading...

Square Footage Breakdown

Total Heated Area

2,385 sq. ft.

1st Floor

2,385 sq. ft.

Basement Unfinished

667 sq. ft.

Optional Lower Level

1,810 sq. ft.

Deck

322 sq. ft.

Beds/Baths

Bedrooms

3, 4, or 5

Full bathrooms

2 or 3

Foundation Type

Standard Foundations

Basement

Exterior Walls

Exterior Walls

2x6

Dimensions

Width

53' 6"

Depth

78' 0"

Max Ridge Height

19' 2"

Garage

Type

Attached

Area

835 sq. ft.

Count

2 Cars

Entry Location

Front

Ceiling Heights

Lower Level

9'

First Floor

10'

Roof Details

Framing Type

Stick And Truss

Special Features

Bedrooms - Split

Plan Collections

Square Footage Breakdown

Total Heated Area

2,385 sq. ft.

1st Floor

2,385 sq. ft.

Basement Unfinished

667 sq. ft.

Optional Lower Level

1,810 sq. ft.

Deck

322 sq. ft.

Beds/Baths

Bedrooms

3, 4, or 5

Full bathrooms

2 or 3

Foundation Type

Standard Foundations

Basement

Exterior Walls

Exterior Walls

2x6

Dimensions

Width

53' 6"

Depth

78' 0"

Max Ridge Height

19' 2"

Garage

Type

Attached

Area

835 sq. ft.

Count

2 Cars

Entry Location

Front

Ceiling Heights

Lower Level

9'

First Floor

10'

Roof Details

Framing Type

Stick And Truss

Plan Collections

* Please note that all sale prices and promotions featured on our website are subject to change without prior notice. While we strive to provide accurate and up-to-date information, occasional discrepancies may occur due to factors beyond our control. We encourage you to verify all details, including pricing and availability, before making any purchase. Exclusions or restrictions may apply to specific promotions. We reserve the right to modify or cancel any sale at our discretion. Thank you for your understanding and happy shopping!Let's go back to the top.