


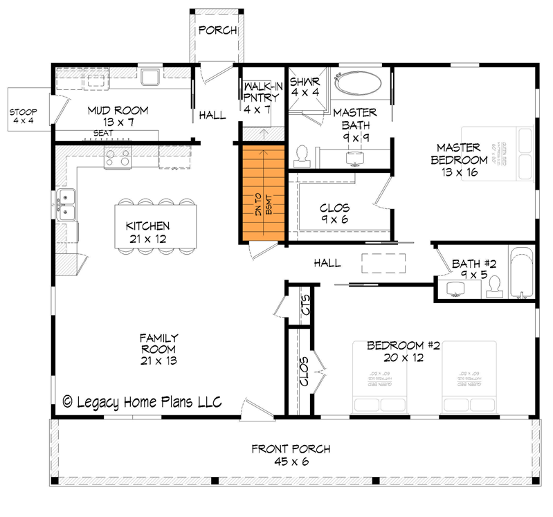
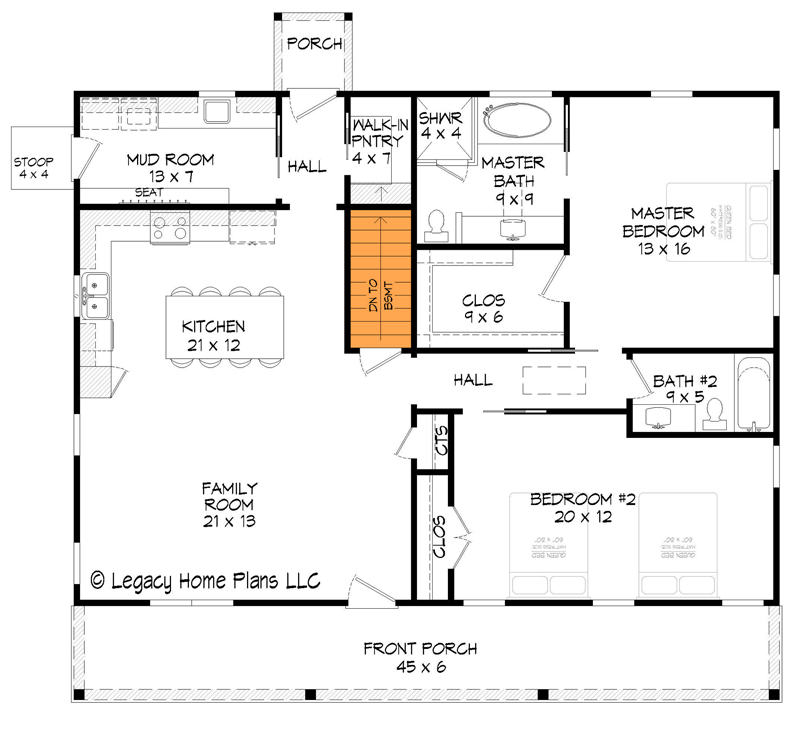
Total Heated Area
1,477 sq. ft.
1st Floor
1,477 sq. ft.
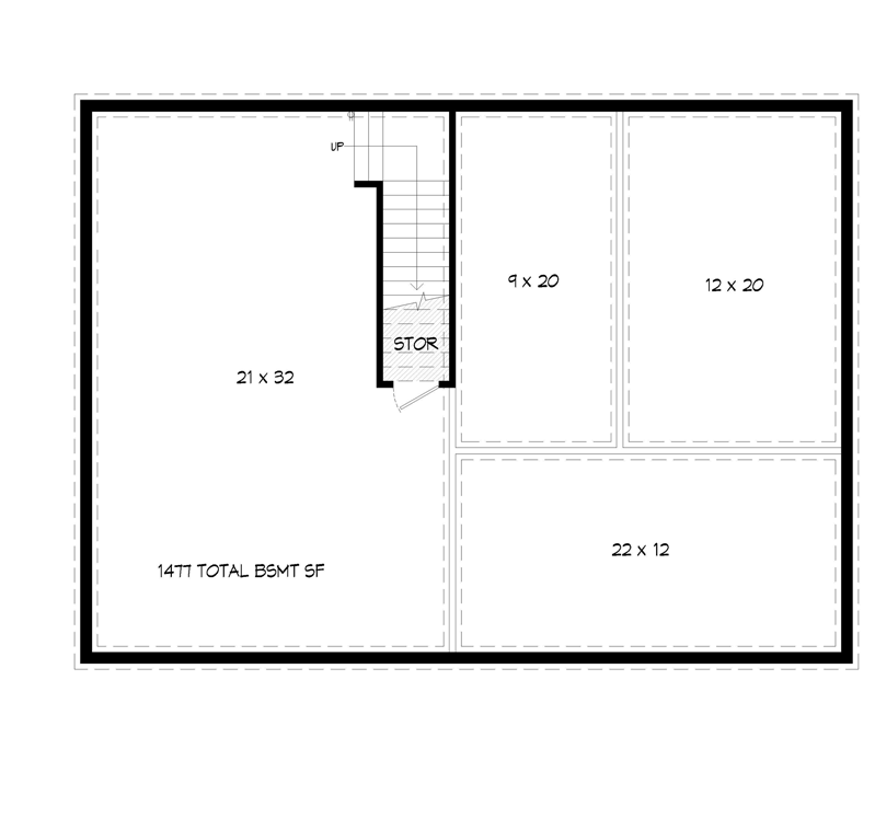
Basement Unfinished
1,477 sq. ft.
Porch, Front
270 sq. ft.
Porch, Rear
25 sq. ft.
Bedrooms
2
Full bathrooms
2
Standard Foundations
Crawl, Slab
Exterior Walls
2x4
Optional Type(s)
2x6
Width
45' 0"
Depth
38' 10"
Max Ridge Height
20' 9"
First Floor
9'
Primary Pitch
4 on 12
Framing Type
Stick
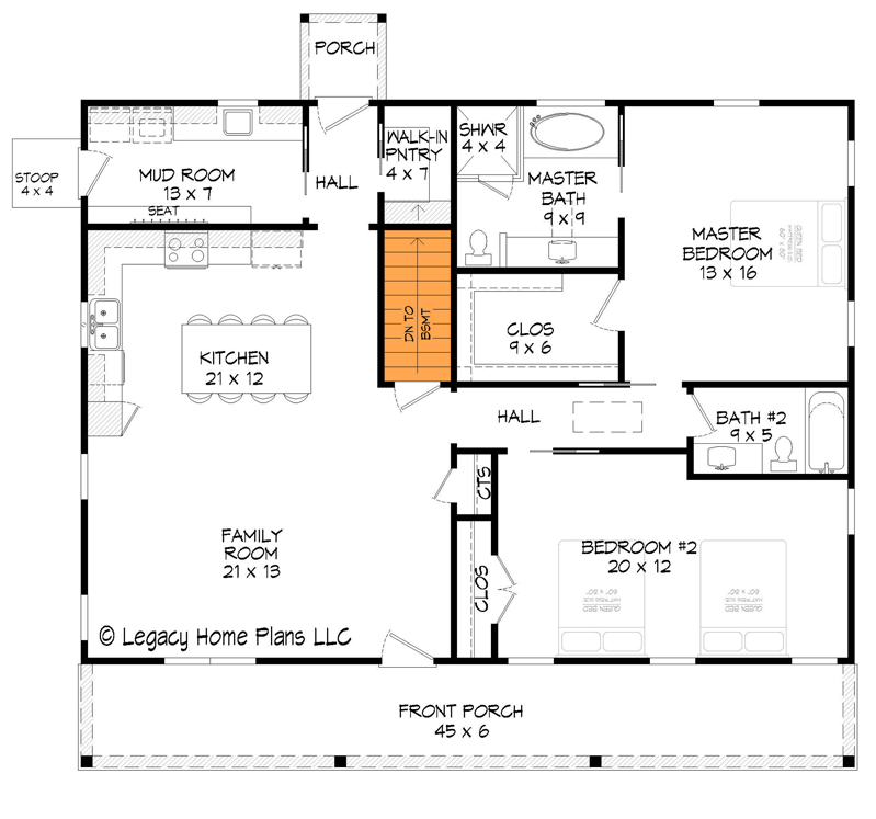
Total Heated Area
1,477 sq. ft.
1st Floor
1,477 sq. ft.
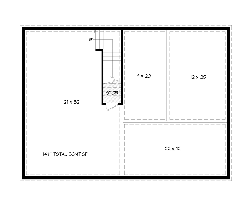
Basement Unfinished
1,477 sq. ft.
Porch, Front
270 sq. ft.
Porch, Rear
25 sq. ft.
Bedrooms
2
Full bathrooms
2
Standard Foundations
Crawl, Slab
Exterior Walls
2x4
Optional Type(s)
2x6
Width
45' 0"
Depth
38' 10"
Max Ridge Height
20' 9"
First Floor
9'
Primary Pitch
4 on 12
Framing Type
Stick