

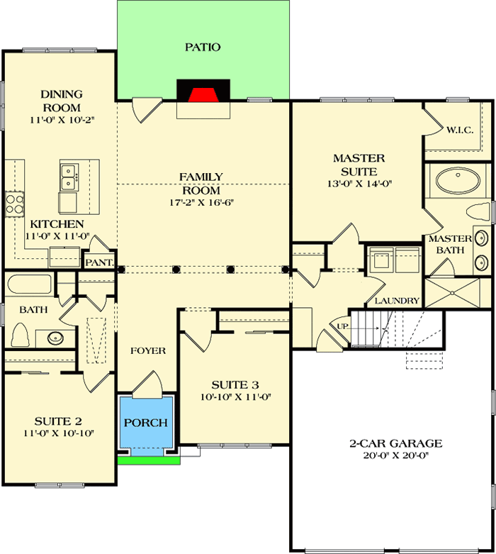
Total Heated Area
1,558 sq. ft.
1st Floor
1,558 sq. ft.
Bonus
271 sq. ft.
Bedrooms
3
Full bathrooms
2
Standard Foundations
Crawl
Exterior Walls
2x4
Width
49' 8"
Depth
50' 8"
Type
Attached
Area
474 sq. ft.
Count
2 Cars
Entry Location
Front
First Floor
9'
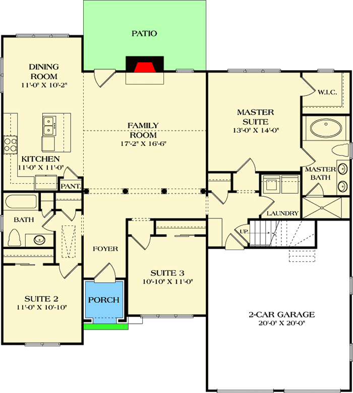
Total Heated Area
1,558 sq. ft.
1st Floor
1,558 sq. ft.
Bonus
271 sq. ft.
Bedrooms
3
Full bathrooms
2
Standard Foundations
Crawl
Exterior Walls
2x4
Width
49' 8"
Depth
50' 8"
Type
Attached
Area
474 sq. ft.
Count
2 Cars
Entry Location
Front
First Floor
9'