LogoLogo TaglineLogo Tagline
Loading...
Plan 21278DR

One-Story 2-Bed 832 Square Foot Cottage Home Plan

Heated S.F.
832
Beds
1
Baths
1
Stories
1

Floor Plan

Plan 21278DR

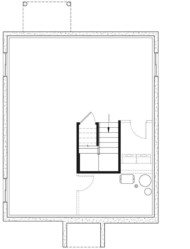
Main Level
Main Level
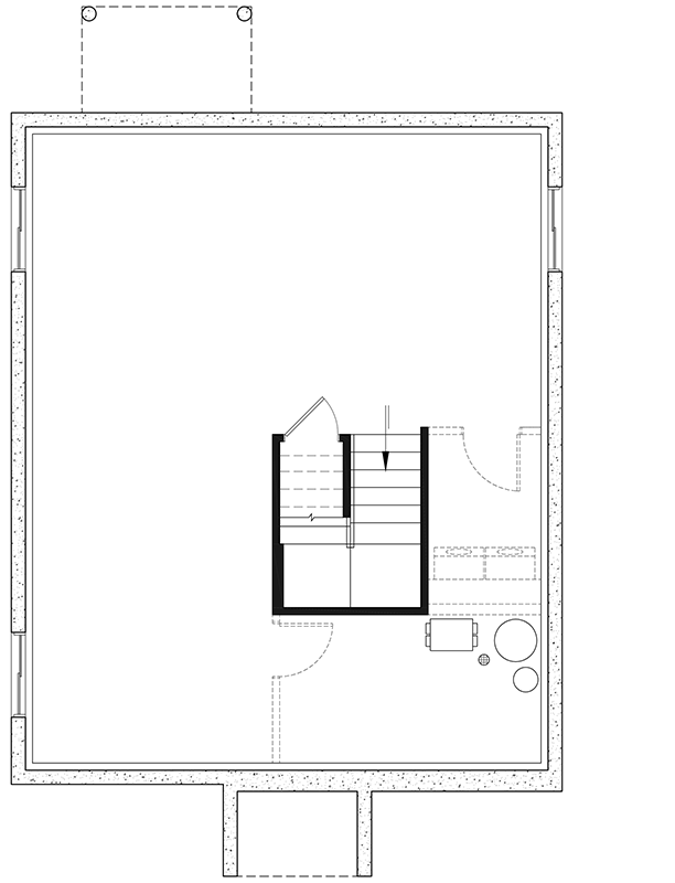
Lower Level
Lower Level

Plan 21278DR

M-F 9am-5pm EST |

1-203-761-8500

Main Level

Plan 21278DR: One-Story 2-Bed 832 Square Foot Cottage Home Plan - Floor Plan - Main Level - Cottage, Traditional

Lower Level

Plan 21278DR: One-Story 2-Bed 832 Square Foot Cottage Home Plan - Floor Plan - Lower Level - Cottage, Traditional

Plan Details

  • This 2-bed cottage has a stucco and painted brick exterior and gives you 832 square feet of heated living inside.
  • A home office located just off the foyer with bench is a nice convenience to have in a home this size.
  • The dining area has a cathedral ceiling centered on the window giving you a dramatic space adjacent to the kitchen with island that seats up to four.
  • A pocket door in the master opens to the bathroom.

What's Included

  • Elevations
  • Foundation Plan
  • Main Floor Plan
  • Upper Floor Plans (if applicable)
  • Roof Plan
  • Building Section
  • Construction Details
  • Typical Wall Section
View Sample Plan

What's Not Included

  • Architectural or Engineering Stamp - handled locally if required
  • Site Plan - handled locally when required
  • Mechanical and Electrical Drawings (location of heating and air equipment and duct work) - your subcontractors handle this
  • Plumbing Drawings (drawings showing the actual plumbing pipe sizes and locations) - your subcontractors handle this
  • Energy calculations - handled locally when required 

Starting at

Loading...
Price Match Guarantee
What's included?

FORMAT & LICENSE

Choose an option

$0

Not sure what to choose?

Pointer link icon

FOUNDATION

Choose an option

+$0

OPTIONS

Choose Additional Options

+$0

Loading...

Modify this Plan

Receive a free modification quote within 3 business days.

Loading...

Start with a Cost Report

Calculate the cost to build & furnish your home.

Loading...
Loading...

Square Footage Breakdown

Total Heated Area

832 sq. ft.

1st Floor

832 sq. ft.

Entry

22 sq. ft.

Beds/Baths

Bedrooms

1

Full bathrooms

1

Foundation Type

Standard Foundations

Basement

Exterior Walls

Exterior Walls

2x6

Dimensions

Width

26' 0"

Depth

32' 0"

Max Ridge Height

18' 4"

Ceiling Heights

First Floor

8'

Roof Details

Primary Pitch

6 on 12

Secondary Pitch

10 on 12

Framing Type

Truss

Architectural Style

Cottage

Square Footage Breakdown

Total Heated Area

832 sq. ft.

1st Floor

832 sq. ft.

Entry

22 sq. ft.

Beds/Baths

Bedrooms

1

Full bathrooms

1

Foundation Type

Standard Foundations

Basement

Exterior Walls

Exterior Walls

2x6

Dimensions

Width

26' 0"

Depth

32' 0"

Max Ridge Height

18' 4"

Ceiling Heights

First Floor

8'

Roof Details

Primary Pitch

6 on 12

Secondary Pitch

10 on 12

Framing Type

Truss

Architectural Style

* Please note that all sale prices and promotions featured on our website are subject to change without prior notice. While we strive to provide accurate and up-to-date information, occasional discrepancies may occur due to factors beyond our control. We encourage you to verify all details, including pricing and availability, before making any purchase. Exclusions or restrictions may apply to specific promotions. We reserve the right to modify or cancel any sale at our discretion. Thank you for your understanding and happy shopping!Let's go back to the top.