





Total Heated Area
2,510 sq. ft.
1st Floor
2,510 sq. ft.
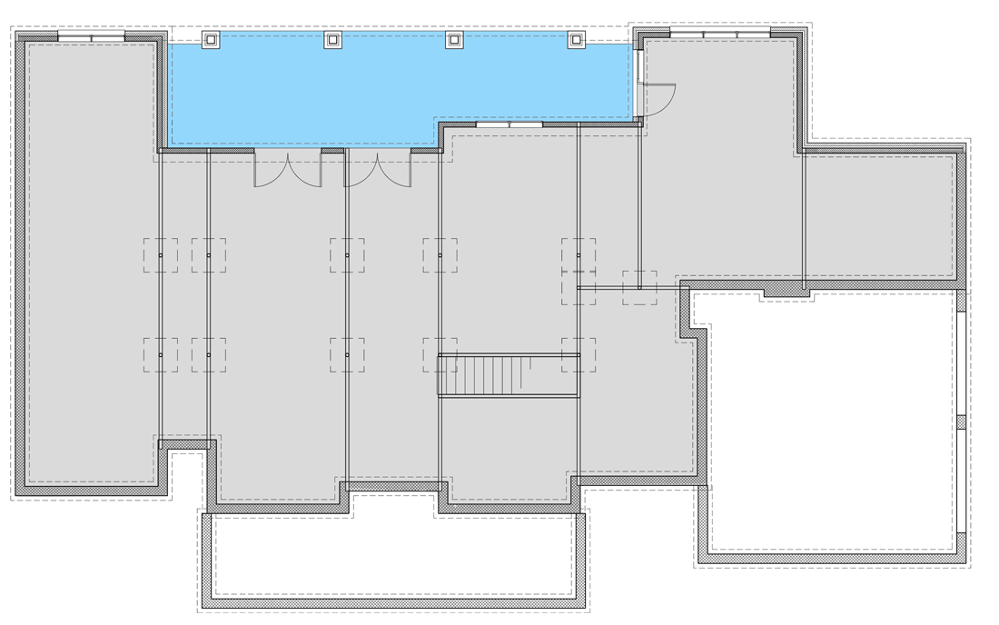
Basement Unfinished
2,510 sq. ft.
Bonus
540 sq. ft.
Porch, Front
283 sq. ft.
Porch, Rear
367 sq. ft.
Porch, Combined
650 sq. ft.
Bedrooms
3
Full bathrooms
2
Half bathrooms
1
Standard Foundations
Slab
Exterior Walls
2x4
Optional Type(s)
2x6
Width
84' 11"
Depth
51' 7"
Max Ridge Height
30' 2"
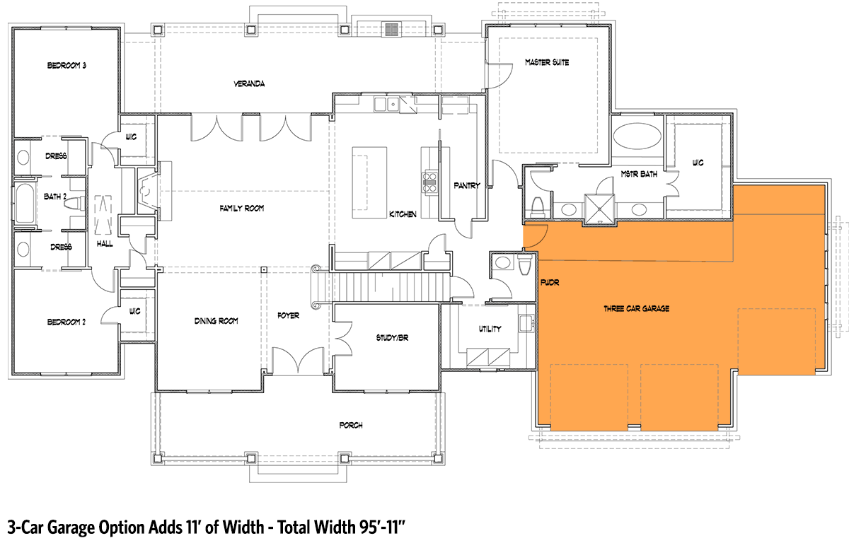
Type
Attached
Area
550 sq. ft.
Count
2 or 3 Cars
Entry Location
Side, Front
First Floor
10'
Bonus
9' 0''
Room
Ceiling Type
Height
Family Room
Vaulted
12' 0''
Primary Pitch
12 on 12
Secondary Pitch
4 on 12
Framing Type
Stick
Total Heated Area
2,510 sq. ft.
1st Floor
2,510 sq. ft.
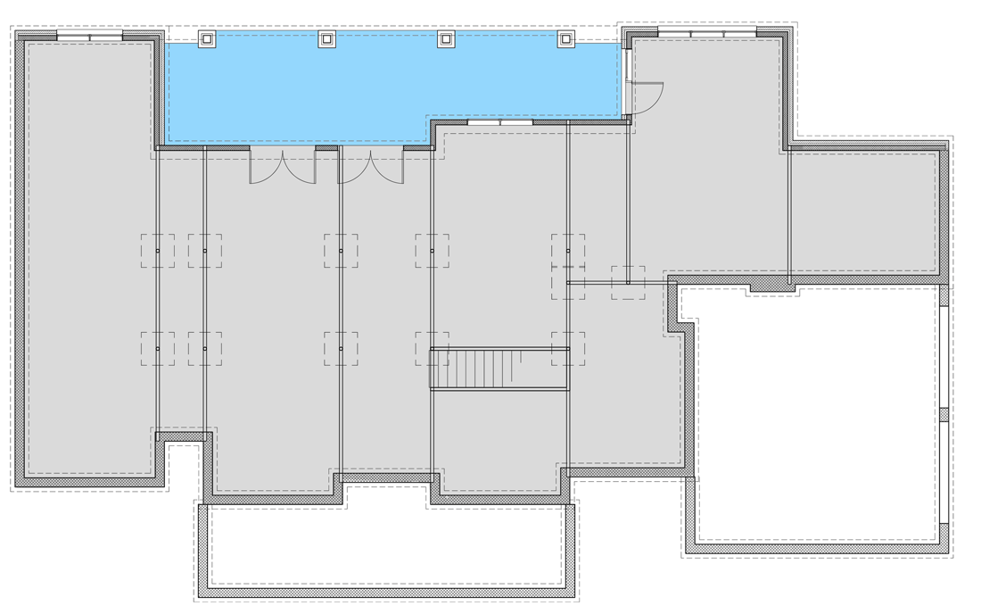
Basement Unfinished
2,510 sq. ft.
Bonus
540 sq. ft.
Porch, Front
283 sq. ft.
Porch, Rear
367 sq. ft.
Porch, Combined
650 sq. ft.
Bedrooms
3
Full bathrooms
2
Half bathrooms
1
Standard Foundations
Slab
Exterior Walls
2x4
Optional Type(s)
2x6
Width
84' 11"
Depth
51' 7"
Max Ridge Height
30' 2"
Type
Attached
Area
550 sq. ft.
Count
2 or 3 Cars
Entry Location
Side, Front
First Floor
10'
Bonus
9' 0''
Room
Ceiling Type
Height
Family Room
Vaulted
12' 0''
Primary Pitch
12 on 12
Secondary Pitch
4 on 12
Framing Type
Stick