Exclusive



Total Heated Area
2,885 sq. ft.
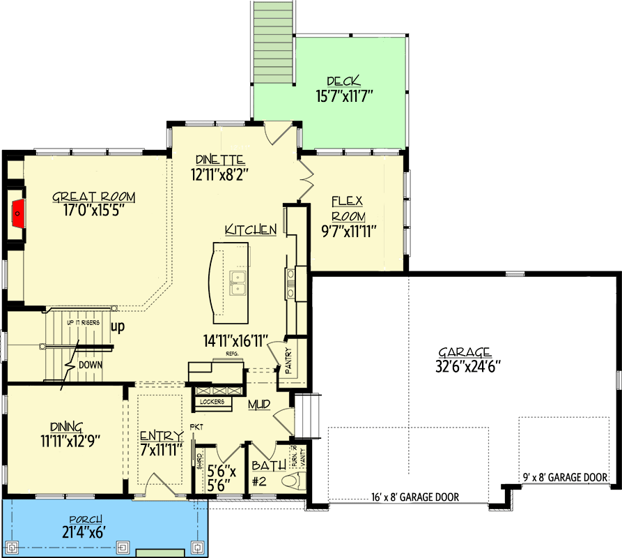
1st Floor
1,312 sq. ft.
2nd Floor
1,573 sq. ft.
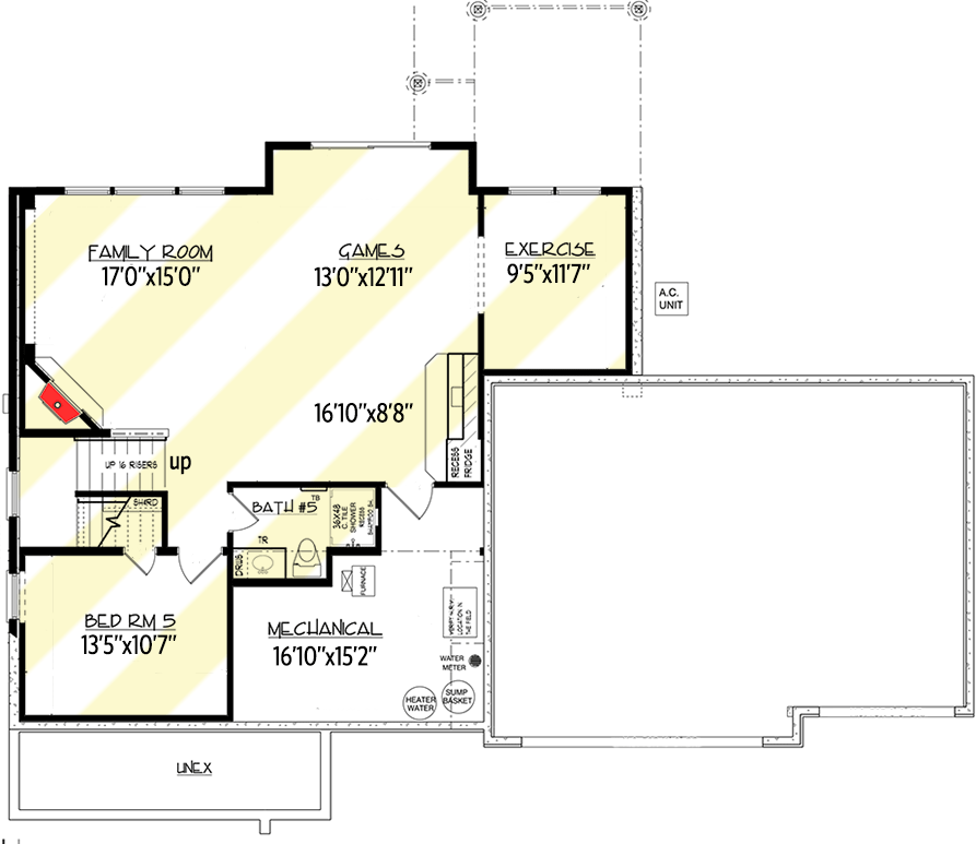
Basement Unfinished
223 sq. ft.
Optional Lower Level
1,100 sq. ft.
Bedrooms
4 or 5
Full bathrooms
3 or 4
Half bathrooms
1
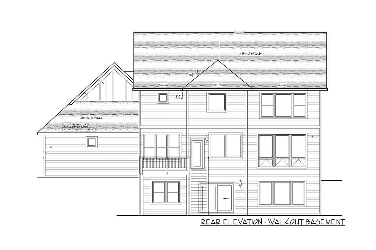
Standard Foundations
Daylight, Walkout
Exterior Walls
2x6
Width
64' 0"
Depth
45' 0"
Max Ridge Height
33' 0"
Type
Attached
Area
750 sq. ft.
Count
3 Cars
Entry Location
Front
Lower Level
8'
First Floor
9'
Second Floor
8'
Room
Ceiling Type
Height
Entry
Raised
0' 0''
Master Bedroom
Raised
0' 0''
Primary Pitch
8 on 12
Secondary Pitch
11 on 12
Framing Type
Truss
Total Heated Area
2,885 sq. ft.
1st Floor
1,312 sq. ft.
2nd Floor
1,573 sq. ft.
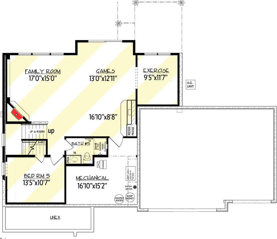
Basement Unfinished
223 sq. ft.
Optional Lower Level
1,100 sq. ft.
Bedrooms
4 or 5
Full bathrooms
3 or 4
Half bathrooms
1
Standard Foundations
Daylight, Walkout
Exterior Walls
2x6
Width
64' 0"
Depth
45' 0"
Max Ridge Height
33' 0"
Type
Attached
Area
750 sq. ft.
Count
3 Cars
Entry Location
Front
Lower Level
8'
First Floor
9'
Second Floor
8'
Room
Ceiling Type
Height
Entry
Raised
0' 0''
Master Bedroom
Raised
0' 0''
Primary Pitch
8 on 12
Secondary Pitch
11 on 12
Framing Type
Truss