Exclusive





Total Heated Area
2,984 sq. ft.
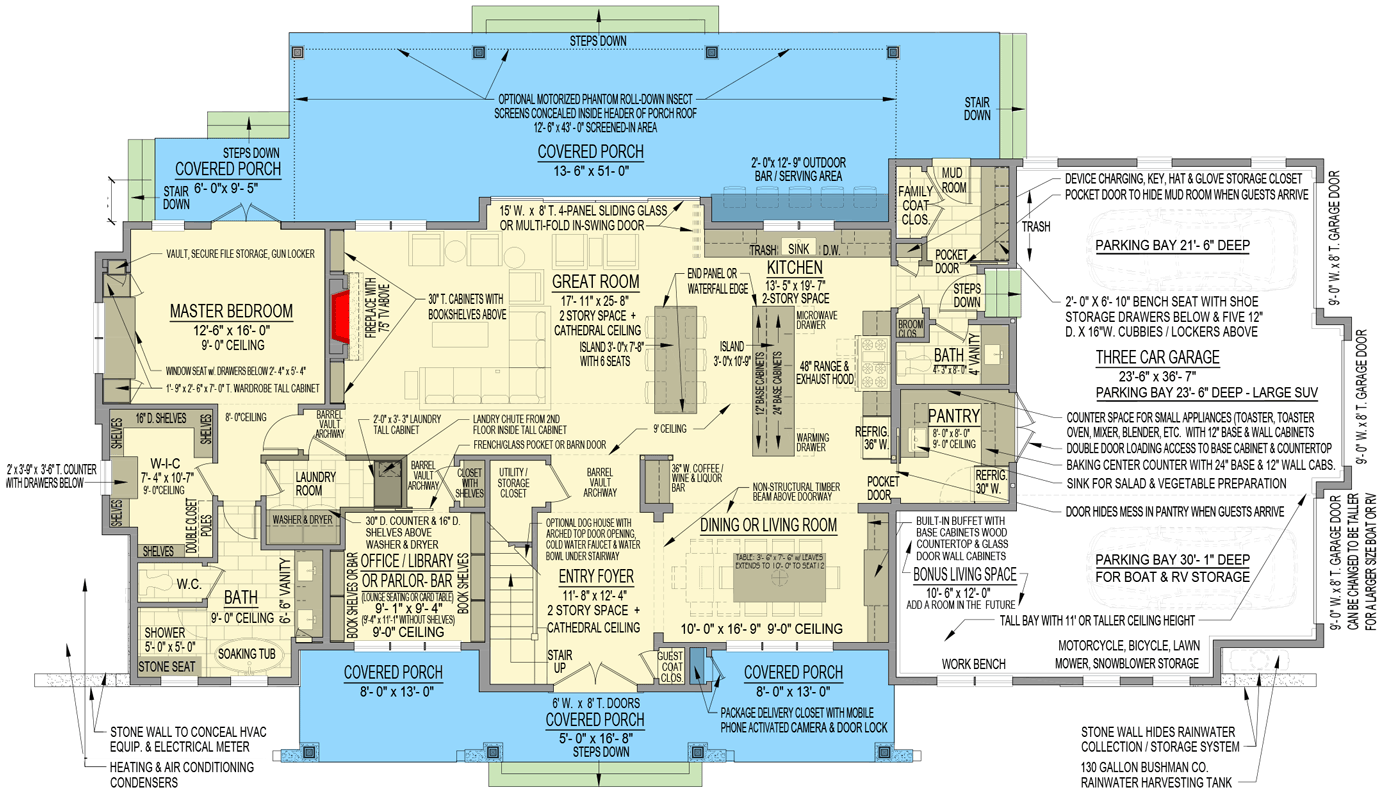
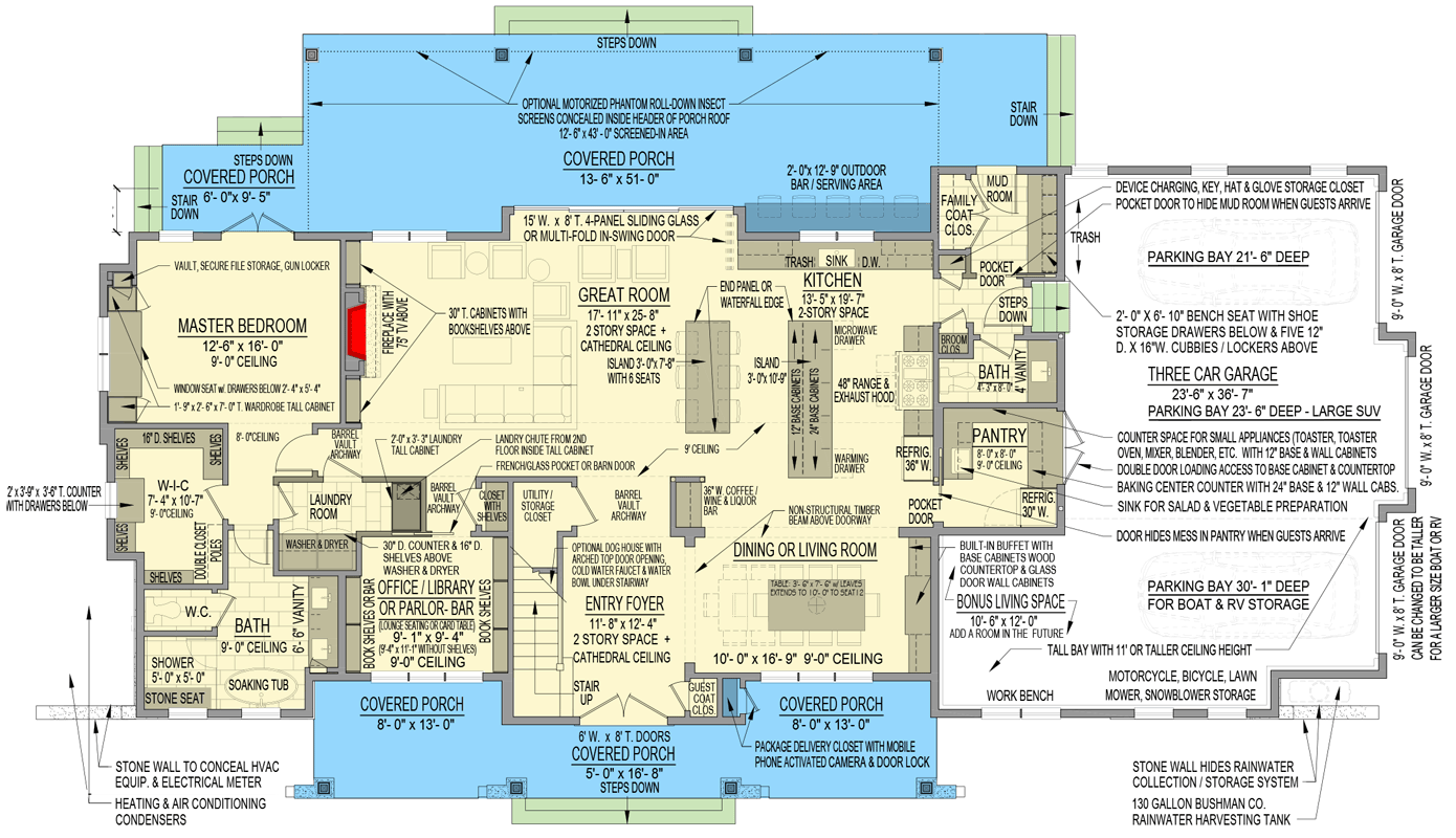
1st Floor
2,032 sq. ft.
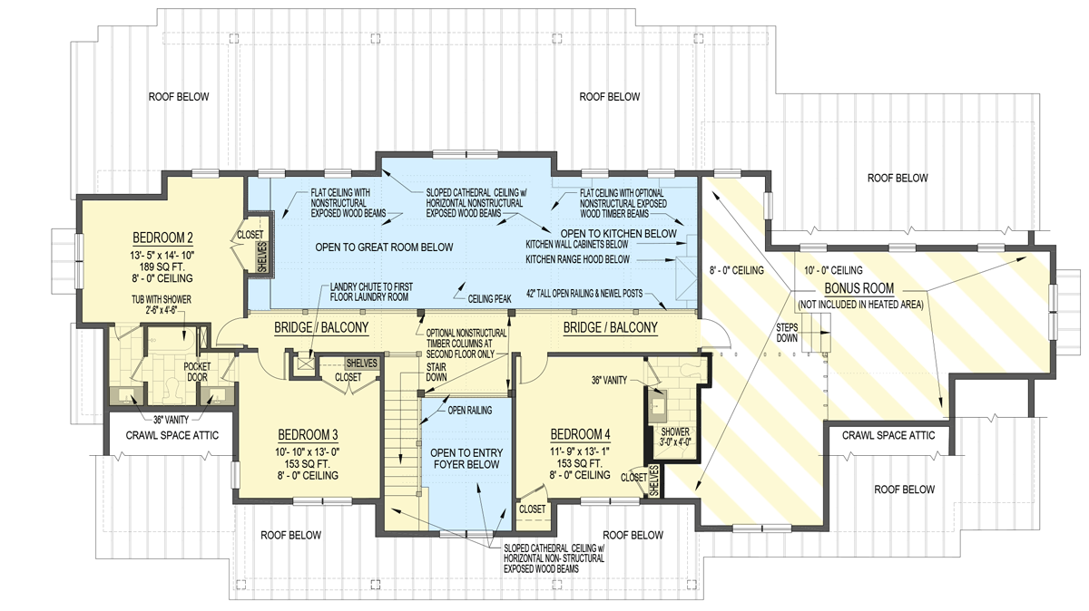
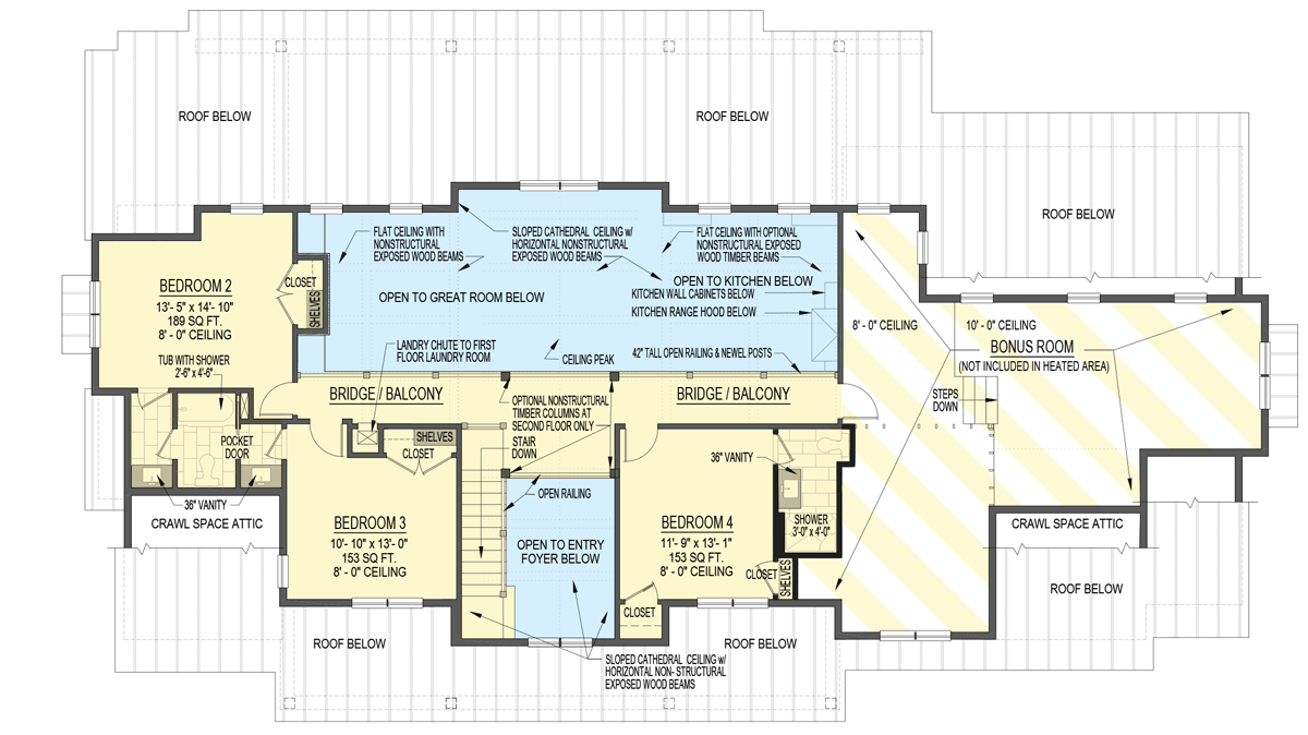
2nd Floor
952 sq. ft.
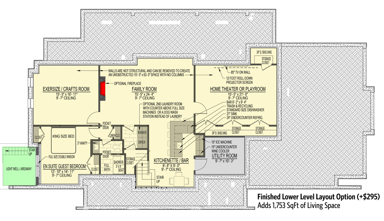
Optional Lower Level
1,753 sq. ft.
Bonus
682 sq. ft.
Porch, Combined
1,000 sq. ft.
Bedrooms
4 or 5
Full bathrooms
3
Half bathrooms
1
Standard Foundations
Crawl
Exterior Walls
2x6
Width
90' 0"
Depth
52' 0"
Max Ridge Height
30' 3"
Type
Attached
Area
964 sq. ft.
Count
3 Cars
Entry Location
Front
Lower Level
9' 7"
First Floor
9'
Second Floor
8'
Primary Pitch
12 on 12
Secondary Pitch
6 on 12
Total Heated Area
2,984 sq. ft.
1st Floor
2,032 sq. ft.
2nd Floor
952 sq. ft.
Optional Lower Level
1,753 sq. ft.
Bonus
682 sq. ft.
Porch, Combined
1,000 sq. ft.
Bedrooms
4 or 5
Full bathrooms
3
Half bathrooms
1
Standard Foundations
Crawl
Exterior Walls
2x6
Width
90' 0"
Depth
52' 0"
Max Ridge Height
30' 3"
Type
Attached
Area
964 sq. ft.
Count
3 Cars
Entry Location
Front
Lower Level
9' 7"
First Floor
9'
Second Floor
8'
Primary Pitch
12 on 12
Secondary Pitch
6 on 12