Exclusive


Total Heated Area
3,636 sq. ft.
1st Floor
2,534 sq. ft.
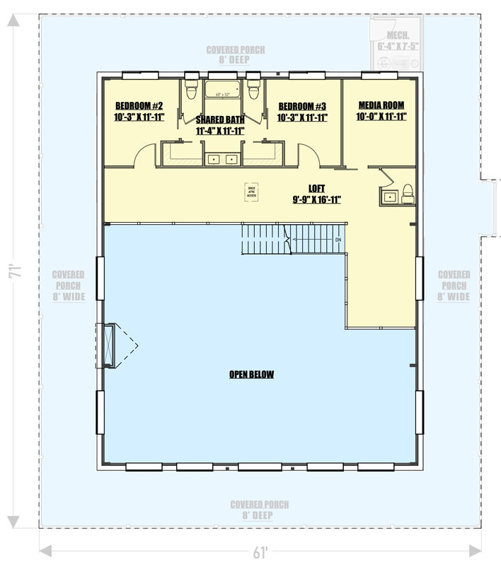
2nd Floor
1,102 sq. ft.
Porch, Combined
1,813 sq. ft.
Bedrooms
3
Full bathrooms
3
Half bathrooms
1
Standard Foundations
Post Frame
Exterior Walls
6x6 post
Width
61' 0"
Depth
71' 0"
Max Ridge Height
28' 3"
First Floor
10'
Second Floor
10'
Primary Pitch
4 on 12
Framing Type
post frame
Total Heated Area
3,636 sq. ft.
1st Floor
2,534 sq. ft.
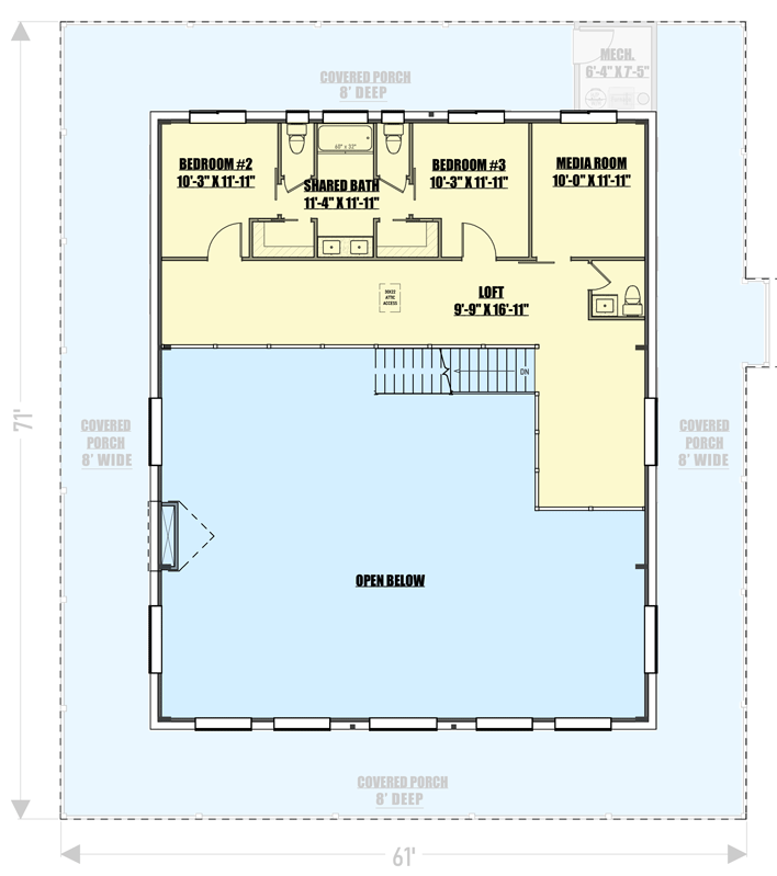
2nd Floor
1,102 sq. ft.
Porch, Combined
1,813 sq. ft.
Bedrooms
3
Full bathrooms
3
Half bathrooms
1
Standard Foundations
Post Frame
Exterior Walls
6x6 post
Width
61' 0"
Depth
71' 0"
Max Ridge Height
28' 3"
First Floor
10'
Second Floor
10'
Primary Pitch
4 on 12
Framing Type
post frame