
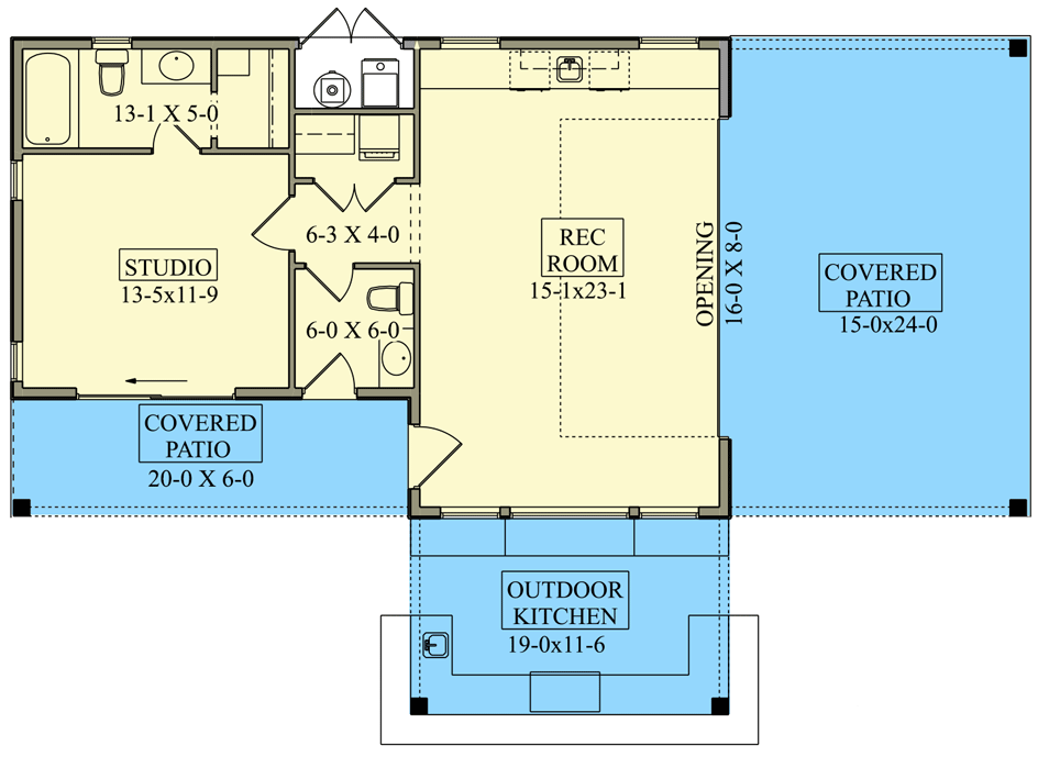
Total Heated Area
744 sq. ft.
1st Floor
744 sq. ft.
Porch, Combined
1,560 sq. ft.
Bedrooms
1
Full bathrooms
1
Standard Foundations
Slab
Exterior Walls
2x6
Width
51' 0"
Depth
34' 0"
Max Ridge Height
19' 9"
First Floor
10'
Primary Pitch
7 on 12
Secondary Pitch
10 on 12
Total Heated Area
744 sq. ft.
1st Floor
744 sq. ft.
Porch, Combined
1,560 sq. ft.
Bedrooms
1
Full bathrooms
1
Standard Foundations
Slab
Exterior Walls
2x6
Width
51' 0"
Depth
34' 0"
Max Ridge Height
19' 9"
First Floor
10'
Primary Pitch
7 on 12
Secondary Pitch
10 on 12