
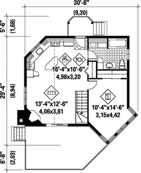
Total Heated Area
696 sq. ft.
1st Floor
696 sq. ft.
Bedrooms
1
Full bathrooms
1
Standard Foundations
Basement
Exterior Walls
2x6
Width
30' 6"
Depth
29' 4"
Max Ridge Height
25' 4"
First Floor
8'
Primary Pitch
10 on 12
Secondary Pitch
10 on 12
Framing Type
Truss
Total Heated Area
696 sq. ft.
1st Floor
696 sq. ft.
Bedrooms
1
Full bathrooms
1
Standard Foundations
Basement
Exterior Walls
2x6
Width
30' 6"
Depth
29' 4"
Max Ridge Height
25' 4"
First Floor
8'
Primary Pitch
10 on 12
Secondary Pitch
10 on 12
Framing Type
Truss