

Total Heated Area
2,653 sq. ft.
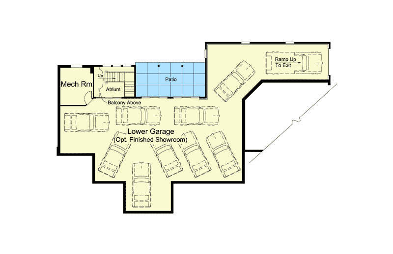
Lower Level
151 sq. ft.
1st Floor
2,502 sq. ft.
Porch, Combined
422 sq. ft.
Bedrooms
3
Full bathrooms
2
Half bathrooms
1
Standard Foundations
Walkout
Exterior Walls
2x4
Width
107' 0"
Depth
59' 4"
Max Ridge Height
26' 6"
Type
Drive Under
Area
3280 sq. ft.
Count
6 Cars
Entry Location
Side
First Floor
9'
Primary Pitch
8 on 12
Secondary Pitch
10 on 12
Framing Type
Truss
Total Heated Area
2,653 sq. ft.
Lower Level
151 sq. ft.
1st Floor
2,502 sq. ft.
Porch, Combined
422 sq. ft.
Bedrooms
3
Full bathrooms
2
Half bathrooms
1
Standard Foundations
Walkout
Exterior Walls
2x4
Width
107' 0"
Depth
59' 4"
Max Ridge Height
26' 6"
Type
Drive Under
Area
3280 sq. ft.
Count
6 Cars
Entry Location
Side
First Floor
9'
Primary Pitch
8 on 12
Secondary Pitch
10 on 12
Framing Type
Truss