


Total Heated Area
8,933 sq. ft.
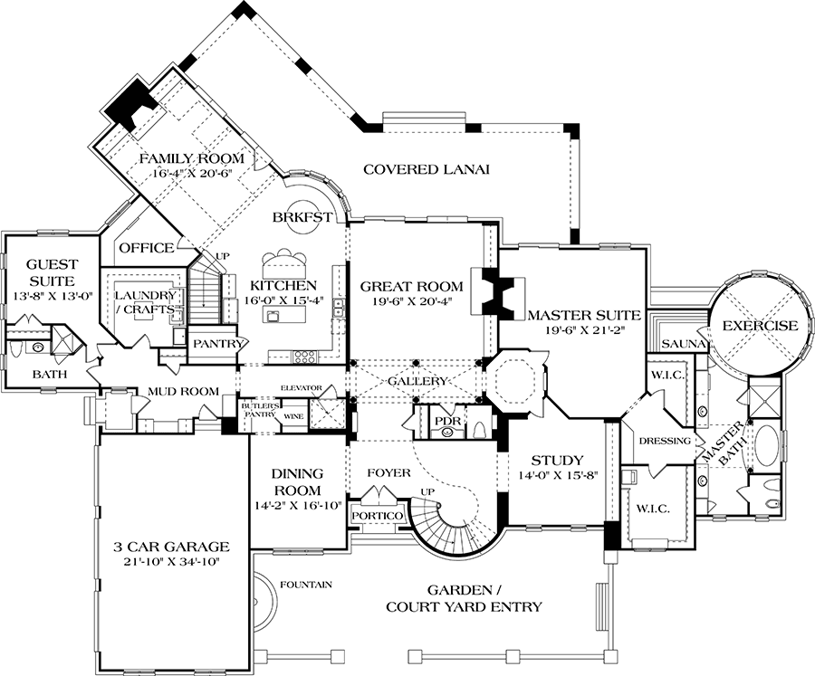
1st Floor
4,870 sq. ft.
2nd Floor
3,328 sq. ft.
3rd Floor
735 sq. ft.
Bedrooms
7
Full bathrooms
5
Half bathrooms
1
Standard Foundations
Crawl
Exterior Walls
2x4
Width
120' 10"
Depth
100' 4"
Max Ridge Height
43' 5"
Type
Attached
Area
844 sq. ft.
Count
3 Cars
Entry Location
Side
First Floor
10'
Second Floor
9'
Total Heated Area
8,933 sq. ft.
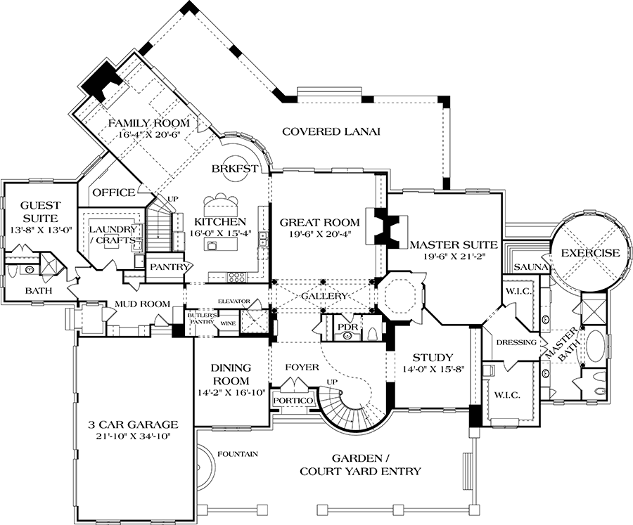
1st Floor
4,870 sq. ft.
2nd Floor
3,328 sq. ft.
3rd Floor
735 sq. ft.
Bedrooms
7
Full bathrooms
5
Half bathrooms
1
Standard Foundations
Crawl
Exterior Walls
2x4
Width
120' 10"
Depth
100' 4"
Max Ridge Height
43' 5"
Type
Attached
Area
844 sq. ft.
Count
3 Cars
Entry Location
Side
First Floor
10'
Second Floor
9'