

Total Heated Area
3,025 sq. ft.
1st Floor
2,039 sq. ft.
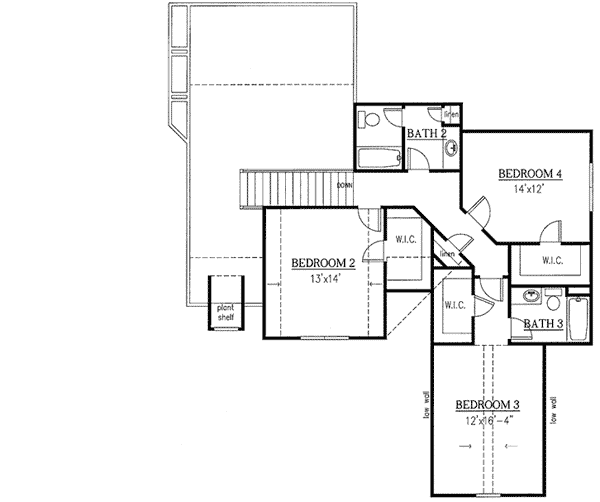
2nd Floor
986 sq. ft.
Entry
29 sq. ft.
Bedrooms
4
Full bathrooms
3
Half bathrooms
1
Standard Foundations
Crawl, Walkout
Exterior Walls
2x4
Width
64' 0"
Depth
57' 0"
Max Ridge Height
29' 0"
Type
Attached
Area
734 sq. ft.
Count
3 Cars
Entry Location
Side
First Floor
9'
Second Floor
8'
Room
Ceiling Type
Height
None
12' 0''
Hearth Room
Vaulted
15' 0''
Study
Vaulted
14' 0''
Master Bedroom
Tray
8' 2''
Primary Pitch
12 on 12
Framing Type
Stick
Total Heated Area
3,025 sq. ft.
1st Floor
2,039 sq. ft.
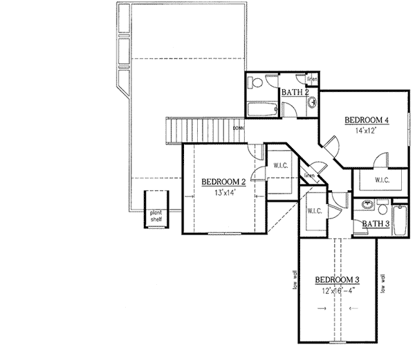
2nd Floor
986 sq. ft.
Entry
29 sq. ft.
Bedrooms
4
Full bathrooms
3
Half bathrooms
1
Standard Foundations
Crawl, Walkout
Exterior Walls
2x4
Width
64' 0"
Depth
57' 0"
Max Ridge Height
29' 0"
Type
Attached
Area
734 sq. ft.
Count
3 Cars
Entry Location
Side
First Floor
9'
Second Floor
8'
Room
Ceiling Type
Height
None
12' 0''
Hearth Room
Vaulted
15' 0''
Study
Vaulted
14' 0''
Master Bedroom
Tray
8' 2''
Primary Pitch
12 on 12
Framing Type
Stick